Типы домов: преимущества и недостатки
Выбор типа дома
«Ста́линки», сталинские дома — общее разговорное название домов, сооружавшихся в СССР с конца 1930-х годов до середины 1950-х годов, во время правления И. В. Сталина, преимущественно в стиле неоклассицизма.
Их строительство началось в Краснодаре в конце 20-х годов прошлого века.
Сталинские дома можно разделить на 2 типа: довоенные и те, что построены после Победы. Их конструктивное отличие состоит в том, что до войны дома строили с деревянными межэтажными перекрытиями. Бетонными были только пол 1-го этажа и потолок последнего. Такая концепция была характерна для всего довоенного строительства. «Сталинки», построенные после Великой Отечественной войны, имеют железобетонные перекрытия на всех этажах.
В Краснодаре это здания от двух до пяти этажей. Большинство имеют 3-4 этажа.
Как правило, сталинская квартира имеет значительное число комнат — обычно три-четыре. Одно- и двухкомнатные «сталинки» строились ограниченно.
Высота потолков в «сталинках» в основном от 2,8 до 3,2 метра. Они имеют удобные кухни до 15 кв.м. Многие «сталинки» имеют балконы.
Основной стройматериал, использовавшийся при возведении сталинских домов — кирпич, в довоенных постройках в основном использовался красный, в более поздних — белый. В основном сталинские дома покрывались штукатуркой.
Общая площадь «сталинок» обычно составляет:
1-комнатная — 32-50 кв.м.;
2-комнатная — 44-66 кв.м.;
3-комнатная — 57-85 кв.м.;
4-комнатная — 80-110 кв.м.
- Высокая шумо- и теплоизоляция, хорошая площадь квартир, а самое главное, настоящее месторасположение таких домов — центр города.
- Это просторные светлые квартиры с большими окнами и высокими потолками (последнее обстоятельство позволяет сделать многоуровневый потолок с самыми смелыми дизайнерскими решениями). Одно из главных преимуществ – хорошая площадь. Двухкомнатная «сталинка» может по площади равняться трехкомнатной «хрущевке».
- Другой важный плюс – планировка. Как правило, в «сталинках» изолированные комнаты, что выгодно отличает их от тех же «хрущевок».
Минусы
- «Сталинки» имеют высокий процент износа зданий (прежде всего, коммуникации), отсутствие современной инфраструктуры (в частности, автостоянок и подземных гаражей).
- «Сталинки» остаются достаточно дорогим и престижным жильём, особенно после проведённого ремонта.
- Отсутствие балконов и лоджий на первых этажах.
При Н.С. Хрущеве началось массовое строительство новых домов под девизом «для каждой семьи маленькое жилье, но свое». В народе эти дома стали называться «хрущевками». «Хрущевки» в Краснодаре — это в основном 5-этажные панельные и кирпичные дома с квартирами малой площади.
Строительство «хрущёвок» продолжалось с 1956 по 1985 год. Первоначально «хрущевки» строились кирпичными, с начала 60-х гг. в целях экономии и увеличения темпа строительства перешли на панельное домостроение.
Общая площадь квартир в «хрущевках» обычно следующая:
1-комнатная квартира – 28-33 кв.м.,
2- комнатная квартира — 38-46 кв.м.,
3- комнатная квартира — 48-58 кв.м.,
маломерки — 24-26 кв.м. + отсутствие санузла.
Минусы «Хрущевок»:
- высота потолков 2,5 м,
- слабая звукоизоляция внутренних стен – перегородки между комнатами в несколько сантиметров,
- узкие коридоры и лестничные клетки,
- маленькие размеры кухонь (4-6 кв.м.) и жилых комнат (6-16 кв.м.),
- смежные или проходные комнаты,
- отсутствие лифта,
- срок эксплуатации 25 лет,
- большое количество трещин и грибка,
- высокий процент износа,
- недостаточная теплоизоляция — прохлада зимой и, наоборот — жара летом (особенно на верхних этажах).

Плюсы «Хрущевок»:
- низкая стоимость относительно других типов домов в городе Краснодаре.
- расположение в районах с хорошо развитой инфраструктурой.
Высотки в Краснодаре 5-14 этажей:
Типовые серии домов, получившие свое название по имени Генерального секретаря ЦК КПСС Леонида Ильича Брежнева, при котором они проектировались, то есть с 1965 года по начало 1980-х годов.
После того как был принят новый стандарт типового строительства домов – Единый каталог строительных деталей, на его основе стали разрабатываться новые или модернизироваться готовые серии домов. В итоге, в жизнь начинают выпускать «брежневки» – улучшенный вариант «хрущевок».
Эти дома строились в период правления Брежнева, отсюда и получили название «Брежневские» дома.
Отличаются от «хрущевок», как правило, следующим:
- наличие лифта и мусоропровода;
- большая площадь и этажность чем у хрущевок;
- разделённый санузел;
- обеспечена гидроизоляция в санузлах,
- расширены лестничные площадки и пролеты.
Квартиры в Краснодаре в этих домах по площади сопоставимы с «хрущевками».
- 1-комнатная квартира – 22-31- кв.м.,
- 2- комнатная квартира — 42-45 кв.м.,
- 3- комнатная квартира — 48-56 кв.м.
- 4- комнатная квартира – 58-70 кв.м.
Минусы Советских высоток.
- в большинстве брежневских серий плохая теплоизоляция стен,
- маленькие тесные кухни во многих сериях,
- плохая звукоизоляция,
- отсутствие лифта в 5-этажных домах,
- часто приходится ремонтировать разошедшиеся стыки (швы) между панелями, бывают протечки наружных стен.
Плюсы
- расположение домов и инфраструктура,
- наличие лифтов в домах 9-12 этажей,
- комнаты в «брежневках», как правило, изолированные (либо легко сделать их такими).
Квартиры улучшенной планировки:
Такие квартиры стали строить в 1980-е годы. Были разработаны типовые серии домов, имеющих улучшенную планировку и увеличенную площадь. Как правило, это панельные или кирпичные 9-10-этажные дома.
Комнаты в таких квартирах изолированные, туалет и ванная комната разделены, увеличена площадь кухонь до 8-9 кв.м., имеются балконы и лоджии. Дома оснащены лифтами и мусоропроводами.
Так же оборудована придомовая территория и детская площадка.
Квартиры имели, как правило, следующую площадь:
1-комнатные квартиры — 33-39 кв.м.
2- комнатные квартиры — 52-54 кв.м.
3- комнатные квартиры — 65-71 кв.м.
Минусы
- Плохое состояние подъездов,
- Часто протекает крыша.0
Такими домами застроен Комсомольский мкр. (КМР), много их на Гидрострое (ГМР), есть на Черемушках (ЧМР), в Юбилейном (ЮМР), на Фестивальном (ФМР).
Монолитные
Монолитное домостроение — это современная технология строительства многоэтажных домов, позволяющая возводить здания практически любой высоты и формы.
Благодаря особенностям процесса строительства, возводятся такие дома достаточно быстро. Сначала на стройплощадке монтируются формы, повторяющие контуры стен, балок и т. д., затем в них вставляется арматура, потом заливается бетон. Когда бетон затвердевает, получается готовый элемент здания. Заливочные формы (опалубка) демонтируются либо становятся частью стены. Темпы строительства зависят от количества опалубки одновременно находящейся в работе.
Главное достоинство такой технологии – полная свобода в создании планировок, с любой длинной пролетов и с требуемой высотой потолка. Перегородок внутри квартиры можно не ставить совсем. В результате архитектор обладает практически полной свободой самовыражения при проектировании таких зданий, в отличие от, например, панельных домов, где фантазия проектировщика ограничена размерами заводских панелей.
Как правило, внутренние стены делают из газобетона, газоблока или гипсоблока, это позволяет делать стены достаточно тонкими, соответственно и квартиры в таких домах намного просторнее. Эти материалы очень хорошо поглощают звук.
Монолитные дома одни из самых долговечных и надежных построек. Первые 60 лет с момента строительства они только прибавляют в жесткости. При просадке почвы дом из кирпича может рухнуть, тогда как монолитное строение можно укрепить.
Такие дома практически не имеют швов, что положительно сказывается на показателях тепло- и звуконепроницаемости. Это позволяет существенно уменьшить толщину стен, а значит массу всего здания и нагрузку на фундамент. В монолитных домах не бывает трещин на потолке.
К монолитным домам относятся все дома, которые имеют в своей основе монолитный каркас. Наружные стены в них выполняют из различного материала: кирпич, пеноблок (пенобетон), панель. Некоторые монолитные дома выполнены полностью по монолитной технологии, в них и наружные стены монолитные.
Монолитное домостроение постепенно вытесняет другие типы домов. Преимущества монолитов прежде всего в прочности. Такая недвижимость Краснодара более сейсмостойкая, чем панельные и кирпичные дома.
Монолитные дома строят во многих районах города Краснодара.

Современные Блочные и панельные дома
В настоящее время один из самых ходовых видов жилья.
Плюсы современных блочных и панельных домов:
- Они сдаются с полной внутренней отделкой. Это существенно экономит средства и время,
- Но основным плюсом блочных и панельных домов для потребителя все же остается его невысокая цена.
Сталинка, хрущевка или новостройка? Где жить комфортнее
Личный опыт

От квартиры я многого не требую: главное, чтобы было тихо и тепло. Если еще и планировка удачная, то это вообще идеал.

Я сменила пять квартир — и у каждой были свои недостатки. Возможно, мой опыт поможет выбрать нормальное жилье и избежать неприятных сюрпризов сразу после сделки.
Для удобства сравнения я указала цену за квадратный метр двухкомнатных квартир, которые находятся в одном районе Екатеринбурга.
Брежневка 1971 года постройки
Одна брежневка не похожа на другую: от серии дома зависят планировка, материал и толщина стен. Хорошо о типовых сериях пишет сайт «Тип дома», а материал стен и перекрытий можно определить на сайте «Реформа ЖКХ» в разделе «Мой дом». Но не все данные на «Реформе ЖКХ» точные: я вижу, как из-под отлетевшей штукатурки дома напротив виднеется красный кирпич, хотя сайт утверждает, что дом панельный.
Я жила в брежневке до трех лет. Потом переехала с родителями, но в квартире осталась бабушка — и я часто бывала в гостях.
Конструкция. Стены — панель, облицовка камнями. Я не строитель, поэтому до сих пор не понимаю, зачем нужны эти небольшие серые камни, возможно, для лучшей теплоизоляции. Крыша плоская, залита битумом. Небольшие балконы в каждой квартире, кроме первых этажей.
Вместо одной квартиры на первом этаже — общая кладовка, через которую можно пройти насквозь и оказаться на противоположной стороне дома. Соседи с ключами от кладовой так и делали, чтобы не давать крюк: в доме было 12 подъездов.

Планировка. Пятый этаж, двушка, 44 кв. м. На одной площадке три квартиры: одна трехкомнатная и две двухкомнатные. Планировка удобная: изолированные комнаты, длинная, но узкая кухня, раздельный санузел. Небольшие окна выходят на разные стороны дома: комната и кухня — на север, другая комната — на юг. Высота потолков — 2,6 м. Небольшая кладовка в коридоре и длинная антресоль, в которой бы поместился взрослый человек. Мы хранили там коробки с вещами.
Ощущения. Летом в «южной» комнате стояла невыносимая жара, панельные стены моментально прогревались. А зимой было холодно в «северной» комнате: казалось, панель промерзала насквозь в октябре и излучала холод до апреля. Каждые пару лет приходилось белить потолок — в одном и том же месте постоянно протекала крыша.
Соседей было слышно хорошо. Сейчас это стало бы для меня проблемой, но в детстве я забегала домой только поесть и поспать, поэтому не обращала внимания на крики за стеной.
Типичная «коробка», знакомая каждому россиянину
По балкону к нам часто приходил соседский кот: ел и там, и здесь
Сталинка 1953 года постройки
В этом доме дали жилье моему отцу — но не полноценную квартиру, а комнату в общежитии коридорного типа. Все соседи работали вместе, на одном предприятии. За порядком следили комендант и вахтер.
Это общежитие — как последнее пристанище коммунизма: родился ребенок — получай комнату, пришел пьяным на работу — выселение. А еще дежурства по кухне, общие праздники, общественное порицание — все это каким-то образом сохранялось в 90-е.

Считается, что этот дом строили пленные немцы — как и несколько похожих домов рядом. Может быть, поэтому он не напоминает типовые сталинки.
Мы заехали в комнату как во временное жилье. Но через два года отец погиб, и мы с мамой жили там еще двенадцать лет.
Конструкция. Стены — блок, толщина наружных стен 60 см. Межкомнатные стены — дранка. Крыша двухскатная, покрыта шифером. Перекрытия смешанные: железобетонные пролеты в середине и по краям здания, деревянные полы из лиственницы вдоль коридора. Высота потолков — 3,2 м. Широкие пролеты и коридоры, лепнина, колонны — мне это казалось нормой, но теперь понимаю, что редко где встретишь такую архитектуру. В подвале сохранились спортзал и прачечная, но сейчас эти помещения сдали в аренду.
Планировка. Наша комната была площадью 19 кв. м. Квадратная, с двумя окнами — это удобно, можно было хоть как-то зонировать пространство. Площадь кухни и туалета — 25 и 15 кв. м. И кухня, и туалет с небольшими балконами.
Были нежилые помещения и поинтереснее: колясочная, несколько кладовок и комната для собраний — «красный уголок». В этой комнате размером со среднюю однушку взрослые обсуждали свои проблемы, а дети играли. Там был стол для настольного тенниса, несколько кресел и обычные письменные столы. Часто готовили представления: натягивали старые шторы, мастерили декорации из картона — вот сцена и готова. Из цветной бумаги вырежем «билеты», вставим в каждую дверь — и ждем зрителей.

Пространства и людей было действительно много, поэтому в плохую погоду никто дома не скучал — ходили в гости, менялись книгами, учились выжигать по дереву или вязать крючком у старушек-рукодельниц. С соседями дружим до сих пор, хотя и не живем бок о бок.
Ощущения. Мы жили на верхнем этаже, но проблем с потолком не было — крыша не протекала. Окна были раза в полтора больше хрущевских, как и высота потолка — света хватало.
Шум с улицы не беспокоил, но соседей было слышно: хоть звуки изрядно глушились, но, например, басы стереосистемы соседа-меломана заставляли тихонечко звенеть посуду. Но обычно я и была этим соседом, чего уж там.
Деревянные перекрытия буквально окаменели — лиственница со временем становится только тверже, поэтому проблем «прыгнул — мебель зловеще накренилась» не было.
Окна комнаты выходили на запад — жаркие закаты и духоту после полудня я воспринимала как должное. Это лучше, чем мерзнуть, не видя солнца. Хотя соседи, у которых окна выходили на север, на холод не жаловались.
А вот «южанам» не повезло: в сквере напротив дома районный ЗАГС поставил несколько лавок и скульптуру сердца. Ни разу не видела там влюбленных парочек, зато компании молодых и горячих собираются каждую летнюю ночь.
В доме такой формы легко заблудиться: сквозные лестницы, повороты, одинаковые двери комнат
Дом стоит на горе: с одной стороны он двухэтажный, с другой — трехэтажный
Панельный дом 1978 года постройки
Когда мы выбирали квартиру, я уговаривала маму на сталинку, ведь в общежитии было комфортно: тепло, тихо и светло. Но купили квартиру в двенадцатиэтажном панельном доме.
Перед сделкой поговорили с соседями, узнавали, есть ли какие-то проблемы. Все как один уверяли, что дом теплый, а наши будущие соседи — милые приветливые люди. Оказалось, что в выбранной квартире до нас жила пьющая семья и соседи просто хотели, чтобы поскорее заселился кто-то другой.
Наша квартира была на втором этаже, все окна выходили на запад. Мы планировали задержаться надолго, поэтому хорошо так вложились в ремонт: поставили деревянные евроокна, перелопатили всю отделку, заказали мебель по размерам и даже сделали будку для собаки на лоджии.
Конструкция. Панельные стены, плоская крыша, залитая битумом. Насколько я помню, стены были не толще 30 см.
Планировка. Планировки в таких домах называют улучшенными, потому что по сравнению с типовыми хрущевками квартира намного удобнее: изолированные комнаты, раздельный санузел, лоджия площадью 11 квадратов, ниша для одежды в прихожей. Но высота потолков осталась той же — 2,5 м.
В доме один подъезд и два лифта — оба пассажирские. На этаже восемь квартир, по четыре в каждом блоке. Можно подниматься на лифте, а можно по лестнице. Лифтом я почти не пользовалась — выводила овчарку по лестнице, чтобы лишний раз не сталкиваться с соседями.
Ощущения. В первую же зиму квартира промерзла: на задней стенке шкафа появилась плесень, одеяла и одежда потяжелели от влажности. Причем промерзал не внешний угол, а тот, что граничит с лестничным пролетом. В горле першило, нос закладывало. Даже летом было холодно.
Обратились в управляющую компанию. Пришел инженер и сказал:
«Да, это давняя проблема. Ошибка в расчетах при строительстве, ничего не поделаешь».
Оказалось, что в доме промерзает весь ряд квартир на правой стороне. А в квартирах слева жарко. Из-за влажности то и дело появлялись насекомые, которых не брал ни один яд. Потолки давили — 2,5 метра казались какой-то насмешкой после трех с лишним метров в сталинке.
Но настоящей проблемой стали звуки — было слышно вообще все: вот сосед с пятого этажа чихнул — будь здоров, Петр Андреевич, вот на третьем этаже ночью переставили стул — что ж, надеюсь вам будет удобнее продолжать застолье, а вот и дрель — кому-то на десятом не спится в субботнее утро. По монолиту звуки идут не так, как по дранке или блокам, — они острые, высокие и наглые: казалось, что соседи чихают и ремонтируют прямо в моей комнате.
Хотя есть и удачные панельные дома: например, бабушка разменяла свою квартиру, потому что ей стало тяжело подниматься на пятый этаж, на квартиру в похожем доме. Тоже панельном, но шестнадцатиэтажном — там тепло и сухо. Со звукоизоляцией та же беда, но бабушку это не смущает — она плохо слышит.
Через три года мы продали неудачную квартиру. Купил строитель — он сказал, что сделает внешнюю теплоизоляцию, потому что утеплять внутри бесполезно. Затраты на ремонт не отбились даже наполовину. В итоге мама переехала в новостройку, а я нашла почти идеальное жилье.

Новостройка 2008 года
Сейчас нет типов и серий домов: застройщик сам решает, как будет выглядеть дом и какой будет планировка. Грубо все новые дома можно разделить на эконом- и бизнес-класс.
Самыми крутыми считаются дома из двух-трех рядов кирпича. Причем кирпич не должен быть облицовкой панельной стены — вся стена должна быть из кирпича. Я буду говорить об экономклассе — монолитной высотке.
Конструкция. Шестнадцатиэтажный дом, монолит. Перекрытия железобетонные, крыша плоская. Один подъезд, два лифта: грузовой и пассажирский.
Планировка. На этаже пять квартир — считается, это не так уж и много. Хорошо, если стены комнаты не граничат с соседями. У мамы именно так: одна стена общая с кухней, другая — с небольшим коридором на площадке в подъезде. С соседями граничит только кухня.
Санузел раздельный, просторная лоджия на всю ширину квартиры. Есть гардеробная, которая заменяет все шкафы и комоды.

Ощущения. Мама живет на 11-м этаже — комары не долетают, шума улицы не слышно. Квартира очень теплая, радиатор на кухне всегда выключен.
Все окна выходят на одну сторону, поэтому быстро «просквозить» квартиру не получится. Но с общедомовыми системами беда: вентканал не справляется — видимо, из-за обилия вытяжек, а напор воды слишком слаб.
Однажды я осталась там ночевать — и чуть не проснулась седой. Посреди ночи кто-то страшно зарычал, но в темноте даже очертаний не разглядеть. Оказалось, это смачно зевнул сосед, а звук перешел по стене, рядом с которой я спала.
Желтый дом — новостройка, в которой живет мама. Сзади серо-коричневые панельные шестнадцатиэтажки — в одной из них живет бабушка. В обеих квартирах отличная планировка, сухо и тепло. Но звукоизоляция никакая
Блочная хрущевка 1959 года постройки
Я хотела квартиру в сталинке с железобетонными перекрытиями, но денег хватало только на хрущевку.
Выбирала квартиру по запаху: чую, что слишком влажно, — отказываюсь, несмотря на хороший ремонт и низкую цену. Помня печальный опыт с панельным жильем, смотрела дома только из кирпича и блоков.
Конструкция. Блочный пятиэтажный дом. Толщина наружных стен — 60 см. Крыша двухскатная, покрыта шифером. Межквартирные стены — плиты.
Планировка. В моем доме три подъезда, в каждом 20 квартир. Планировки типичные: совмещенный санузел, смежные комнаты, холодильник под подоконником на кухне и окно в ванную. Но хотя бы дышится легко: высота потолков — 2,8 м, а окна больше стандартных.
Ощущения. Я выбрала угловую квартиру на верхнем этаже, чтобы меньше слышать соседей. Переживала, что стены будут промерзать, а крыша — протекать, но зря. Если я забуду зимой открыть форточку, то через несколько часов квартира прогреется до 28 градусов — жарко. Потолки тоже не протекают — крыша «домиком» цела.
Соседей я действительно не слышу, как и шум с улицы. Немного напрягает подниматься на пятый этаж, но утешает, что это полезно.
Угол дома смотрит на север, а окна квартиры — на северо-запад и северо-восток. Кажется, это идеальный режим: утром и вечером солнце заглядывает, а днем не жарит. Домашние животные не задыхаются, обои не выцветают, все счастливы. Свет включаю после заката, не раньше. Хорошо, что окна большие — если поймают не прямой солнечный луч, то хотя бы отраженный от дома напротив.
Соседи за стеной жаловались, что мерзнут зимой. Дело в том, что окна их квартиры выходят на запад — а в моем регионе ветра в основном западные. Даже у тех, чьи окна смотрят на север, в квартире теплее.
Почти все соседи старожилы, из двадцати квартир в подъезде только одну сдают в аренду. Мы общаемся в Вотсапе: придумываем, что бы еще такого потребовать от управляющей компании. Но сейчас главный вопрос — не снесут ли наш дом по программе реновации. Пока этого никто не хочет.
В прошлом году был капремонт: заменили стояки и проводку, перебрали крышу, покрасили фасад
Не все торопятся менять окна на пластиковые: старые рамы хорошо сохранились и еще держат тепло
Типовые серии хрущевок. Фото планировок
С 1957 года, после принятия закона, который предусматривал устранение излишеств в проектировании домов, в СССР стали возводиться здания нового типа. В народе такие дома получили название «хрущевки» (производное от фамилии генерального секретаря ЦК КПСС Н.С. Хрущева). Такие дома получили второе название – хрущебы, в основном, из-за неудобной и непропорциональной планировки комнат, узких коридоров и пролетов площадок, тонких стен и как результат – ужасной шумоизоляции. В этой статье мы расскажем о том, что такое типовые серии хрущевок, постараемся выделить основные плюсы и минусы этих зданий. Особенности планировки предоставим в виде описаний и фото.
Типовые серии хрущевок: основные плюсы и минусы домов
Давайте рассмотрим основные характеристики квартир и определим особенности каждой серии хрущевок, которые возводились на протяжении 27 лет. Стоит заметить, что изначально хрущевки предполагалось использовать, как временное жилье и эксплуатационный срок здания составлял от 25 до 50 лет. Но, как известно, в таких домах проживают люди и в наше время. К минусам хрущевок можно отнести плохую шумоизоляцию и теплоизоляцию (зимой прохладно, а летом слишком жарко в квартире), не всегда удачную планировку квартиры и подъезда: узкие коридоры, маленькую кухню, отсутствие мусоропровода и очень часто лифта. К основным плюсам таких домов можно отнести невысокую стоимость.
К основным плюсам таких домов можно отнести невысокую стоимость жилья и развитую инфраструктуру вокруг здания. Как правило, недалеко от хрущевок есть садики, школы, магазины и отличная транспортная развязка. Если денежных средств на покупку квартиры мало, то хрущевка – не самый плохой вариант. Тем более, такие здания в Москве и других городах России, подлежат сносу, в этом случае владельцы получают новенькое жилье, или реконструкции и перепланировке.

Серия 1-464 (1960 – 1967 гг.)

Одной из самых популярных в СССР серий хрущевок стала 1-464 (1960 – 1967 гг.). Это панельный дом с 5 этажами, редко можно встретить 3 и 4 этажные здания. Во всех квартирах есть балконы (также дополнительные кладовки), а вот лифты не предусмотрены и жителям здания приходиться подниматься и спускаться по ступенькам, что достаточно тяжело пожилым людям, семьям с маленькими детьми. Санузлы в квартирах совмещенные, в подъезде нет общего мусоропровода, а количество квартир на площадке составляет 4. Высота потолков в квартирах – 2,5 м2, кухни менее 6 м2, если быть точнее – 5,8 м2. Квартиры 1, 2 и 3-х комнатные.





Серия 1-335 (1963 – 1967 гг.)
С 1963 по 1967 гг. территория застраивалась домами серии 1-335. Это тоже панельные здания, с высотой потолков 2,54 м., балконами в каждой квартире, совмещенными санузлами, отсутствием лифта и мусоропровода. Площадь кухни немного больше, чем в предыдущей серии – 6,2 м2, площадь потолков – 2,5 м. На площадке располагается четыре квартиры – от 1 до 3-х комнатной. Помимо балконов в квартирах есть дополнительные кладовки и встроенные шкафы.


Серия 1-434 (1958 – 1964 гг.)
Эта серия строилась с 1958 года по 1964 год, в различные года застройки немного видоизменялись планировки квартир. Так, например, в зданиях 1958 года в однокомнатных квартирах площадь жилой комнаты составляла 18,6 м2, а в 1959 году она уменьшилась до 18,2 м2, в 1969 г. – площадь комнаты составляла 17,7 м2. И так во всех типах квартир площадь жилых помещений варьировалась в сторону уменьшения и увеличения. А вот площадь кухни осталась неизменной – 5,8 м2, как и высота потолков – 2,5 м. Дома – кирпичные, совмещенные санузлы, а в каждой квартире есть балкон, кладовая и встроенные шкафы.
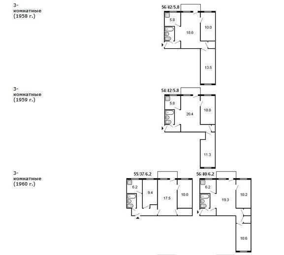
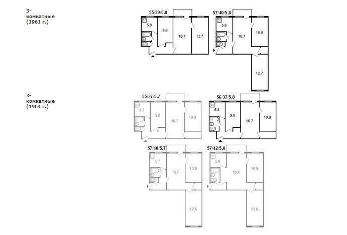
Картинки – чертеж (по годам)
1 комнатная 1958 год

1 комнатная 1959 год

1 комнатная 1960 год

1 комнатная 1961 год

1 комнатная 1964 год

2 комнатная 1958 год

2 комнатная 1959 год


2 комнатная 1960 год


2 комнатная 1964 год

3 комнатная 1958 год

3 комнатная 1959 год

3 комнатная 1960 год

3 комнатная 1961 год

3 комнатная 1964 год

Серия 1-467 (1959 – 1969 гг.)
Последняя серия, которую мы рассмотрим, строилась с 1959 по 1969 год. Это блочные дома, высота потолков, как и в предыдущих сериях – 2,5 м, площадь кухни – от 6,6 м2 до 7,7 м2. Во всех квартирах (1, 2 и 3-х комнатных) есть балконы кроме 1 этажа. Санузлы в ранних версиях зданий — раздельные, а в поздних – совмещенные, отсутствует мусоропровод. К достоинствам квартир этой серии относят возможность их перепланировки, к недостаткам – смежные комнаты во многих квартирах. Картинка – чертеж:
Сталинка, хрущевка или новостройка? Где жить комфортнее
Личный опыт

От квартиры я многого не требую: главное, чтобы было тихо и тепло. Если еще и планировка удачная, то это вообще идеал.

Я сменила пять квартир — и у каждой были свои недостатки. Возможно, мой опыт поможет выбрать нормальное жилье и избежать неприятных сюрпризов сразу после сделки.
Для удобства сравнения я указала цену за квадратный метр двухкомнатных квартир, которые находятся в одном районе Екатеринбурга.
Брежневка 1971 года постройки
Одна брежневка не похожа на другую: от серии дома зависят планировка, материал и толщина стен. Хорошо о типовых сериях пишет сайт «Тип дома», а материал стен и перекрытий можно определить на сайте «Реформа ЖКХ» в разделе «Мой дом». Но не все данные на «Реформе ЖКХ» точные: я вижу, как из-под отлетевшей штукатурки дома напротив виднеется красный кирпич, хотя сайт утверждает, что дом панельный.
Я жила в брежневке до трех лет. Потом переехала с родителями, но в квартире осталась бабушка — и я часто бывала в гостях.
Конструкция. Стены — панель, облицовка камнями. Я не строитель, поэтому до сих пор не понимаю, зачем нужны эти небольшие серые камни, возможно, для лучшей теплоизоляции. Крыша плоская, залита битумом. Небольшие балконы в каждой квартире, кроме первых этажей.
Вместо одной квартиры на первом этаже — общая кладовка, через которую можно пройти насквозь и оказаться на противоположной стороне дома. Соседи с ключами от кладовой так и делали, чтобы не давать крюк: в доме было 12 подъездов.

Планировка. Пятый этаж, двушка, 44 кв. м. На одной площадке три квартиры: одна трехкомнатная и две двухкомнатные. Планировка удобная: изолированные комнаты, длинная, но узкая кухня, раздельный санузел. Небольшие окна выходят на разные стороны дома: комната и кухня — на север, другая комната — на юг. Высота потолков — 2,6 м. Небольшая кладовка в коридоре и длинная антресоль, в которой бы поместился взрослый человек. Мы хранили там коробки с вещами.
Ощущения. Летом в «южной» комнате стояла невыносимая жара, панельные стены моментально прогревались. А зимой было холодно в «северной» комнате: казалось, панель промерзала насквозь в октябре и излучала холод до апреля. Каждые пару лет приходилось белить потолок — в одном и том же месте постоянно протекала крыша.
Соседей было слышно хорошо. Сейчас это стало бы для меня проблемой, но в детстве я забегала домой только поесть и поспать, поэтому не обращала внимания на крики за стеной.
Типичная «коробка», знакомая каждому россиянину
По балкону к нам часто приходил соседский кот: ел и там, и здесь
Сталинка 1953 года постройки
В этом доме дали жилье моему отцу — но не полноценную квартиру, а комнату в общежитии коридорного типа. Все соседи работали вместе, на одном предприятии. За порядком следили комендант и вахтер.
Это общежитие — как последнее пристанище коммунизма: родился ребенок — получай комнату, пришел пьяным на работу — выселение. А еще дежурства по кухне, общие праздники, общественное порицание — все это каким-то образом сохранялось в 90-е.

Считается, что этот дом строили пленные немцы — как и несколько похожих домов рядом. Может быть, поэтому он не напоминает типовые сталинки.
Мы заехали в комнату как во временное жилье. Но через два года отец погиб, и мы с мамой жили там еще двенадцать лет.
Конструкция. Стены — блок, толщина наружных стен 60 см. Межкомнатные стены — дранка. Крыша двухскатная, покрыта шифером. Перекрытия смешанные: железобетонные пролеты в середине и по краям здания, деревянные полы из лиственницы вдоль коридора. Высота потолков — 3,2 м. Широкие пролеты и коридоры, лепнина, колонны — мне это казалось нормой, но теперь понимаю, что редко где встретишь такую архитектуру. В подвале сохранились спортзал и прачечная, но сейчас эти помещения сдали в аренду.
Планировка. Наша комната была площадью 19 кв. м. Квадратная, с двумя окнами — это удобно, можно было хоть как-то зонировать пространство. Площадь кухни и туалета — 25 и 15 кв. м. И кухня, и туалет с небольшими балконами.
Были нежилые помещения и поинтереснее: колясочная, несколько кладовок и комната для собраний — «красный уголок». В этой комнате размером со среднюю однушку взрослые обсуждали свои проблемы, а дети играли. Там был стол для настольного тенниса, несколько кресел и обычные письменные столы. Часто готовили представления: натягивали старые шторы, мастерили декорации из картона — вот сцена и готова. Из цветной бумаги вырежем «билеты», вставим в каждую дверь — и ждем зрителей.

Пространства и людей было действительно много, поэтому в плохую погоду никто дома не скучал — ходили в гости, менялись книгами, учились выжигать по дереву или вязать крючком у старушек-рукодельниц. С соседями дружим до сих пор, хотя и не живем бок о бок.
Ощущения. Мы жили на верхнем этаже, но проблем с потолком не было — крыша не протекала. Окна были раза в полтора больше хрущевских, как и высота потолка — света хватало.
Шум с улицы не беспокоил, но соседей было слышно: хоть звуки изрядно глушились, но, например, басы стереосистемы соседа-меломана заставляли тихонечко звенеть посуду. Но обычно я и была этим соседом, чего уж там.
Деревянные перекрытия буквально окаменели — лиственница со временем становится только тверже, поэтому проблем «прыгнул — мебель зловеще накренилась» не было.
Окна комнаты выходили на запад — жаркие закаты и духоту после полудня я воспринимала как должное. Это лучше, чем мерзнуть, не видя солнца. Хотя соседи, у которых окна выходили на север, на холод не жаловались.
А вот «южанам» не повезло: в сквере напротив дома районный ЗАГС поставил несколько лавок и скульптуру сердца. Ни разу не видела там влюбленных парочек, зато компании молодых и горячих собираются каждую летнюю ночь.
В доме такой формы легко заблудиться: сквозные лестницы, повороты, одинаковые двери комнат
Дом стоит на горе: с одной стороны он двухэтажный, с другой — трехэтажный
Панельный дом 1978 года постройки
Когда мы выбирали квартиру, я уговаривала маму на сталинку, ведь в общежитии было комфортно: тепло, тихо и светло. Но купили квартиру в двенадцатиэтажном панельном доме.
Перед сделкой поговорили с соседями, узнавали, есть ли какие-то проблемы. Все как один уверяли, что дом теплый, а наши будущие соседи — милые приветливые люди. Оказалось, что в выбранной квартире до нас жила пьющая семья и соседи просто хотели, чтобы поскорее заселился кто-то другой.
Наша квартира была на втором этаже, все окна выходили на запад. Мы планировали задержаться надолго, поэтому хорошо так вложились в ремонт: поставили деревянные евроокна, перелопатили всю отделку, заказали мебель по размерам и даже сделали будку для собаки на лоджии.
Конструкция. Панельные стены, плоская крыша, залитая битумом. Насколько я помню, стены были не толще 30 см.
Планировка. Планировки в таких домах называют улучшенными, потому что по сравнению с типовыми хрущевками квартира намного удобнее: изолированные комнаты, раздельный санузел, лоджия площадью 11 квадратов, ниша для одежды в прихожей. Но высота потолков осталась той же — 2,5 м.
В доме один подъезд и два лифта — оба пассажирские. На этаже восемь квартир, по четыре в каждом блоке. Можно подниматься на лифте, а можно по лестнице. Лифтом я почти не пользовалась — выводила овчарку по лестнице, чтобы лишний раз не сталкиваться с соседями.
Ощущения. В первую же зиму квартира промерзла: на задней стенке шкафа появилась плесень, одеяла и одежда потяжелели от влажности. Причем промерзал не внешний угол, а тот, что граничит с лестничным пролетом. В горле першило, нос закладывало. Даже летом было холодно.
Обратились в управляющую компанию. Пришел инженер и сказал:
«Да, это давняя проблема. Ошибка в расчетах при строительстве, ничего не поделаешь».
Оказалось, что в доме промерзает весь ряд квартир на правой стороне. А в квартирах слева жарко. Из-за влажности то и дело появлялись насекомые, которых не брал ни один яд. Потолки давили — 2,5 метра казались какой-то насмешкой после трех с лишним метров в сталинке.
Но настоящей проблемой стали звуки — было слышно вообще все: вот сосед с пятого этажа чихнул — будь здоров, Петр Андреевич, вот на третьем этаже ночью переставили стул — что ж, надеюсь вам будет удобнее продолжать застолье, а вот и дрель — кому-то на десятом не спится в субботнее утро. По монолиту звуки идут не так, как по дранке или блокам, — они острые, высокие и наглые: казалось, что соседи чихают и ремонтируют прямо в моей комнате.
Хотя есть и удачные панельные дома: например, бабушка разменяла свою квартиру, потому что ей стало тяжело подниматься на пятый этаж, на квартиру в похожем доме. Тоже панельном, но шестнадцатиэтажном — там тепло и сухо. Со звукоизоляцией та же беда, но бабушку это не смущает — она плохо слышит.
Через три года мы продали неудачную квартиру. Купил строитель — он сказал, что сделает внешнюю теплоизоляцию, потому что утеплять внутри бесполезно. Затраты на ремонт не отбились даже наполовину. В итоге мама переехала в новостройку, а я нашла почти идеальное жилье.

Новостройка 2008 года
Сейчас нет типов и серий домов: застройщик сам решает, как будет выглядеть дом и какой будет планировка. Грубо все новые дома можно разделить на эконом- и бизнес-класс.
Самыми крутыми считаются дома из двух-трех рядов кирпича. Причем кирпич не должен быть облицовкой панельной стены — вся стена должна быть из кирпича. Я буду говорить об экономклассе — монолитной высотке.
Конструкция. Шестнадцатиэтажный дом, монолит. Перекрытия железобетонные, крыша плоская. Один подъезд, два лифта: грузовой и пассажирский.
Планировка. На этаже пять квартир — считается, это не так уж и много. Хорошо, если стены комнаты не граничат с соседями. У мамы именно так: одна стена общая с кухней, другая — с небольшим коридором на площадке в подъезде. С соседями граничит только кухня.
Санузел раздельный, просторная лоджия на всю ширину квартиры. Есть гардеробная, которая заменяет все шкафы и комоды.

Ощущения. Мама живет на 11-м этаже — комары не долетают, шума улицы не слышно. Квартира очень теплая, радиатор на кухне всегда выключен.
Все окна выходят на одну сторону, поэтому быстро «просквозить» квартиру не получится. Но с общедомовыми системами беда: вентканал не справляется — видимо, из-за обилия вытяжек, а напор воды слишком слаб.
Однажды я осталась там ночевать — и чуть не проснулась седой. Посреди ночи кто-то страшно зарычал, но в темноте даже очертаний не разглядеть. Оказалось, это смачно зевнул сосед, а звук перешел по стене, рядом с которой я спала.
Желтый дом — новостройка, в которой живет мама. Сзади серо-коричневые панельные шестнадцатиэтажки — в одной из них живет бабушка. В обеих квартирах отличная планировка, сухо и тепло. Но звукоизоляция никакая
Блочная хрущевка 1959 года постройки
Я хотела квартиру в сталинке с железобетонными перекрытиями, но денег хватало только на хрущевку.
Выбирала квартиру по запаху: чую, что слишком влажно, — отказываюсь, несмотря на хороший ремонт и низкую цену. Помня печальный опыт с панельным жильем, смотрела дома только из кирпича и блоков.
Конструкция. Блочный пятиэтажный дом. Толщина наружных стен — 60 см. Крыша двухскатная, покрыта шифером. Межквартирные стены — плиты.
Планировка. В моем доме три подъезда, в каждом 20 квартир. Планировки типичные: совмещенный санузел, смежные комнаты, холодильник под подоконником на кухне и окно в ванную. Но хотя бы дышится легко: высота потолков — 2,8 м, а окна больше стандартных.
Ощущения. Я выбрала угловую квартиру на верхнем этаже, чтобы меньше слышать соседей. Переживала, что стены будут промерзать, а крыша — протекать, но зря. Если я забуду зимой открыть форточку, то через несколько часов квартира прогреется до 28 градусов — жарко. Потолки тоже не протекают — крыша «домиком» цела.
Соседей я действительно не слышу, как и шум с улицы. Немного напрягает подниматься на пятый этаж, но утешает, что это полезно.
Угол дома смотрит на север, а окна квартиры — на северо-запад и северо-восток. Кажется, это идеальный режим: утром и вечером солнце заглядывает, а днем не жарит. Домашние животные не задыхаются, обои не выцветают, все счастливы. Свет включаю после заката, не раньше. Хорошо, что окна большие — если поймают не прямой солнечный луч, то хотя бы отраженный от дома напротив.
Соседи за стеной жаловались, что мерзнут зимой. Дело в том, что окна их квартиры выходят на запад — а в моем регионе ветра в основном западные. Даже у тех, чьи окна смотрят на север, в квартире теплее.
Почти все соседи старожилы, из двадцати квартир в подъезде только одну сдают в аренду. Мы общаемся в Вотсапе: придумываем, что бы еще такого потребовать от управляющей компании. Но сейчас главный вопрос — не снесут ли наш дом по программе реновации. Пока этого никто не хочет.
В прошлом году был капремонт: заменили стояки и проводку, перебрали крышу, покрасили фасад
Не все торопятся менять окна на пластиковые: старые рамы хорошо сохранились и еще держат тепло
Хрущевки: описание, типовые планировки с фото
29 сентября, 2014. Прочитано 137326 раз(а)

Введение
Сегодня существует множество многоярусных домов различной планировки, годов постройки и размера жилой площади. В данной статей Мы более подробно рассмотрим основные планировки популярных многоэтажных «Хрущовок», которые можно встретить в каждой стране бывшего СССР. Как правило, это 4-х или 5-ти этажные многоквартирные дома, которые возводились во времена руководства Хрущева Никиты Сергеевича.
«Хрущевки» возводились в период с 1958 до 1985 года, при этом стройка была современного на то время типа, и тысячи семей смогли получить комфортабельные квартиры с проходными комнатами. С 1958 года действует собственный СНиП.
Общие сведенья о хрущевках
Первое поколение 4-х или 5-ти этажных «хрущевок» отличалось небольшой жилой площадью, проходными комнатами. В таких апартаментах высота потолков достигала всего 2,48 метра, в домах блочного типа высота потолка могла достигать 2,7 метра. В «хрущевках» была достаточно слабая звукоизоляция помещений, совмещенный санузел и отсутствовали лифты.
Стоит отметить, что некоторые «хрущевки» относились к временному жилью, которые рассчитывали на эксплуатацию до 25 лет. Однако большая часть, все еще используется гражданами бывших стран СССР. К «хрущевкам» не сносимой серии применялись другие эксплуатационные нормы до 50 лет. В последствие эксперты заявили, что эксплуатационный период можно продлить до 150 лет (в случае капитальных ремонтов согласно нормам). На сегодняшний день «хрущевки» в Москве и Питере подлежат сносу. Однако в Минске, «хрущевкам» выполнили кап. ремонт и утеплили наружные стены.
Основные характеристики «хрущевок»:
- 3-комнатные с общей площадью 55-58 м²;
- 2-комнатные с общей площадью 30-46 м²;
- 1-комнатные с общей площадью 31-33 м².
Жилая площадь комнат:
- Гостиные комнаты – от 14 м²;
- Спальные комнаты – от 8 м²;
- Детские комнаты – от 6 м²;
- Кухни – от 4,5 м².
Виды типовых планировок, серии, фото, описания и годы постройки хрущевок
СЕРИЯ 1-464 – (год постройки 1960-1967)


Хрущевки — серия 1-464
Пяти ярусные дома панельного типа с четырьмя квартирами на одной площадке.
Высота помещений – 2,5 м;
Особенности: кладовка, шкафы встроенного типа, балкон.
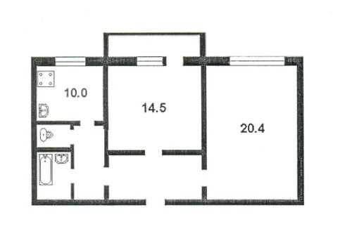
Площадь гостиной в 1-но комнатных «хрущевках» этого типа составляет 19 м², в 2-х и 3-х комнатных 17,3 м²; 19 м² и 20,4 м² в зависимости от планировки. Кладовая размещается в конце спальни или между 1 и 2 спальней. Выход на балкон из гостиной. Санузел совмещенный рядом с кухней.
СЕРИЯ 1-335 – (год постройки 1963-1967)


Хрущевки — серия 1-335
Панельные пяти ярусные дома с четырьмя квартирами на одной площадке.
Высота помещений – 2,5 м;
Особенности: кладовка, шкафы встроенного типа, балкон.
Площадь гостиной в 1-но комнатных «хрущевках» этого типа составляет 18 м², в 2-х и 3-х комнатных 17,1 м²; 18,2 м² и 19,1 м² в зависимости от планировки. Кладовая размещается в конце гостиной или между 1 и 2 спальней. Выход на балкон из гостиной. Санузел совмещенный рядом с кухней.
СЕРИЯ 1-434 – (год постройки 1958-1964)


Хрущевки — серия 1-434 (1 комната)


Хрущевки — серия 1-434 (2 комнаты)


Хрущевки — серия 1-434 (2 комнаты)


Хрущевки — серия 1-434 (3 комнаты)


Хрущевки — серия 1-434 (3 комнаты)
Панельные пяти ярусные дома с четырьмя квартирами на одной площадке.
Высота помещений – 2,5 м;
Особенности: кладовка, шкафы встроенного типа, балкон.
Площадь гостиной в 1-но комнатных «хрущевках» этого типа составляет 16,7 м², 17,7 м², 18,2 м², в 2-х и 3-х комнатных 16,7 м²; 17,0 м²; 18,6 м²; 19,3 м² и 20,4 м², в зависимости от планировки. Кладовая размещается в конце гостиной в 1-комнатных апартаментах, в конце спальни 2-х комнатных или между 1 и 2 спальней в 3-х комнатной квартире. Выход на балкон из гостиной. Санузел совмещенный рядом с кухней.
СЕРИЯ 1-434С – (год постройки 1958-1964)


Хрущевки — серия 1-434С (1 комната)


Хрущевки — серия 1-434С (2 комнаты)


Хрущевки — серия 1-434С (2 комнаты)


Хрущевки — серия 1-434С (3 комнаты)
Панельные пяти и четырех ярусные дома с четырьмя квартирами на одной площадке.
Высота помещений – 2,5 м;
Особенности: кладовка, шкафы встроенного типа, балкон.
Площадь гостиной в 1-но комнатных «хрущевках» этого типа составляет 15,9 м²; 16,9 м²; 17,4 м²; 18,2 м²; 19,5 м²; 20,7 м²; в 2-х и 3-х комнатных 16,2 м²; 17,2 м²; 18,1 м²; 18,6 м² и 19,3 м², в зависимости от планировки. Кладовая размещается в конце гостиной или в конце спальни в 2-комнатных апартаментах, и между 1 и 2 спальней в 3-х комнатной квартире. Выход на балкон из гостиной. Санузел совмещенный рядом с кухней.
Чем отличается сталинка от хрущевки и как выглядит брежневка?

Рынок жилья предлагает большое количество новостроек из различных строительных материалов, дома с улучшенной планировкой. Но на вторичном рынке недвижимости продаются квартиры, построенные во времена Советского Союза: «сталинки», «хрущевки», «брежневки». Жилые массивы появлялись в эпоху каждого руководителя советов.
Если вы хотите узнать, как решить именно Вашу проблему — обращайтесь в форму онлайн-консультанта справа. Это быстро и бесплатно !
Типы домов в России
В домах советского периода проживают миллионы граждан России. Здания встречаются в любом городе страны.
Выделяются три архитектурных пласта, жилые сооружения с особенным внешним видом, определенным количеством этажей и с различной планировкой:
Построенные дома в народе называли по фамилиям руководителей страны, во времена, когда возводились объекты.
Планировка квартир в сталинских домах
Квартирам сталинского типа подходит определение апартаменты или хоромы. Планировка квартир «сталинка» может подразделяться на несколько комнат, кабинет, библиотеку. Черты «сталинки»:
- Просторная площадь;
- Кухня от 7 до 15 м 2 ;
- Раздельный санузел с большой ванной;
- Высота потолков от 3 до 3,2 м;
- Широкий балкон.

Есть два типа «сталинок»: на лестничной клетке — три двухкомнатные и трехкомнатные квартиры; и другая планировка — две жилплощади с четырьмя комнатами.

Сколько квадратных метров положено на человека по закону? Читайте здесь.
Площадь жилья от 50 до 110 м 2 . Дома с отличной звуко- и теплоизоляцией, так как построены из кирпича. Сооружения считаются дорогим и престижным жильем.
Из недостатков отмечаются:
- Высокий процент износа зданий и коммуникации;
- Отсутствие инфраструктуры — автостоянки и подземные гаражи;
- Высокая цена.

Планировка квартир в «хрущевках»
Сооружение «хрущевок» началось в 1959 году и закончилось в восьмидесятых. Сначала кирпичные, а после 1963 года панельные пятиэтажки возводились по принципу «хоть и маленькая площадь, но своя». Квартиры в «хрущевках» отличаются параметрами:
- От 1 до 4 маленьких помещений;
- Небольшая высота потолка — до 2,5 м;
- Маленькая кухня;
- Смежные или проходные комнаты;
- Узкие коридоры и лестничные клетки;
- Отсутствие лифта.

«Хрущевки» различаются по типу жилплощади на лестничной площадке. В домах с четырьмя квартирами на этаже совмещенный санузел, а с тремя — раздельный. Площадь составляет от 18 до 50 м 2 . К минусам хрущевок относятся:
- Недостаточная теплоизоляция — холодно зимой и жарко летом, особенно на последних этажах;
- Слабая звукоизоляция.
Из явных достоинств квартиры в «хрущевке» — приемлемая цена.

Планировка квартир в «брежневках»
Дома начались строиться в 70-х годах из железобетонных панелей. Упор делался на высоту, здания возводились от 9 до 16 этажей с лифтами и мусоропроводом. «Брежневки» — прототипы новостроек, и отличаются улучшенной планировкой квартир «хрущевки»:
- Разделенный санузел с проведенной гидроизоляцией;
- Расширенные лестничные пролеты и площадки;
- Довольно просторная кухня — до 9 м 2 ;
- Изолированные комнаты;
- Потолок — до 2,8 м.

Общая площадь — от 20 до 80 м 2 . Из преимуществ домов этого типа отмечается неплохая планировка, ровные стены и потолок, и «молодость» здания.

Стоит ли обменять квартиру на частный дом: обзор плюсов и минусов? Читайте здесь.
К отрицательным сторонам относятся:
- Ограниченность перепланировки квартиры — большая часть стен несущие;
- Плохая звукоизоляция;
- Холодные помещения — батареи находятся в стенах, приходится устанавливать дополнительные радиаторы.

Во времена Брежнева строились и дома гостиничного типа: здания в 9 этажей с площадью комнат от 12 до 18 м 2 . Квартиры выделялись под временное жилье, но зачастую они оставались как постоянное местожительство.

Чем отличается планировка элитных квартир?
В постсоветский период, при Ельцине, началось строительство элитных домов. Жилые здания различаются по типу и практически не имеют общих характеристик:
- Кухня — от 9 до 20 м 2 , в некоторых квартирах есть кухни-столовые.
- Раздельный один или несколько санузлов.
- Высокие потолки.
- Количество комнат — от одной до семи большой площади.
Жилые дома ельцинского периода — многоэтажные здания с двух- или трехкомнатными квартирами. Площадь достигает до 150 м 2 . Можно встретить двухуровневые «элитки». Редко встречаются квартиры с тремя уровнями.
Преимущества зданий перед советскими постройками: хорошая звуко- и теплоизоляция и небольшой износ объектов, что позволяет им быть востребованными на рынке вторичного жилья.
Быстро, тесно и одинаково: жилищный конвейер Никиты Хрущева
31 июля 1957 года советское правительство приняло решение о массовом строительстве типовых жилых домов
За одиннадцать лет своего руководства СССР первый секретарь ЦК КПСС и председатель советского правительства Никита Хрущев успел совершить множество поступков, которые навсегда вписали его имя в историю нашей страны. В те же годы начался и процесс масштабного переселения советских горожан, задыхавшихся в тесноте коммуналок и в сырости бараков, в новые многоквартирные дома. Заслужившие не слишком уважительное прозвище «хрущевок», а то и «хрущоб», они по сей день встречаются по всему бывшему Советскому Союзу. Нынешним их обитателям эти дома кажутся тесными, неудобными и малокомфортными — но шесть с лишним десятилетий назад это было роскошное по сравнению со многим другим жилье, строительство которого широко развернулось после выхода 31 июля 1957 года постановления советского правительства и ЦК КПСС «О развитии жилищного строительства в СССР».

Один из проектов «хрущевок» предполагал строительство домов из крупноблочных секций
Послевоенный квартирный вопрос
Этот документ, имевший номер 931, начинался со слов о том, что «подъем жизненного уровня и благосостояния народа является одной из важнейших задач», затрагивал практически все вопросы, связанные с жилищным строительством в Советском Союзе, и приводил весьма любопытные цифры. В частности, в постановлении отмечалось, что в годы Великой Отечественной войны были полностью или частично разрушены более 1700 городов и поселков (в других документах приводились такие данные: 1710 городов и более 10 тысяч сел и деревень). Страна потеряла свыше 6 млн домов, или более 70 млн квадратных метров жилой площади, более 25 млн человек остались без крова. И в то же самое время в военные годы удалось восстановить или построить заново 50 млн квадратных метров жилплощади. А за первое послевоенное десятилетие этот объем вырос вшестеро — до 300 млн квадратных метров! И это только построенных государством, поскольку в то же самое время еще около 5,7 млн жилых домов были построены в частном порядке.
И все-таки жилья в стране, прежде всего в городах, где жила уже почти половина населения Советского Союза, по-прежнему остро не хватало. Еще накануне войны на одного советского горожанина приходилось порядка 7 кв. м жилплощади, хотя пятнадцатью годами ранее этот показатель в городах составлял 8,2 кв. м. И то, надо сказать, эти семь квадратных метров зачастую представляли собой ветхое или плохо оборудованное жилье, без канализации и водопровода, или имевшее все это, но пришедшее в малопригодное для жизни состояние, поскольку в военные и первые послевоенные годы было не до ремонта имеющейся жилплощади — важнее было дать новую квартиру тем, кто не имел вообще никакой.

Строительство нового квартала, состоящего исключительно из жилых домов «нового экономичного типового проекта»
В таких условиях прежние, заведенные еще в сталинские годы подходы к проектированию и строительству жилья, когда практически каждый дом планировался индивидуально и строился достаточно неспешно, уже никуда не годились. Ими можно было пользоваться только при строительстве жилья, что называется, повышенной комфортности — а стране требовалось просто очень много дешевого жилья, и быстро. И тогда Никита Хрущев вспомнил о своем опыте времен руководства ЦК Компартии Украины. В 1949 году по хрущевской инициативе в республике началось панельное строительство жилых домов. И вот через восемь лет решено было распространить эту практику на всю страну.
Жилье без излишеств
В постановлении «О развитии жилищного строительства в СССР» собственно возведению панельных домов были отведены пункты 29 и 30. Первый из них оговаривал, что со следующего, 1958-го года, «в жилых домах, строящихся как в городах, так и в сельской местности, предусматривать экономичные благоустроенные квартиры для заселения одной семьей», а сами эти дома строить по типовым проектам. Причем на основе именно этих новых типовых проектов Госстрой СССР должен был разработать и утвердить новые нормы проектирования, в том числе и касающиеся высоты жилых помещений. Именно это и открыло дорогу низким, не больше двух с половиной метров высотой, потолкам в советских жилых домах.

Открытые балконы «хрущевок» многие старались остеклить еще в советское время
А второй пункт определял ответственность местных властей за то, чтобы новые типовые дома получили широкое распространение. В частности, на местах должны были сами решать, какой быть этажности домов, хотя при этом в постановлении оговаривалось, что в городах она должна составлять в основном 4-5 этажей, а в небольших городах и поселках — 2-3 этажа. На местные власти ложилась обязанность развития производства железобетонных конструкций для типовых домов, а кроме того, «крупноразмерных перегородок, щитовых дверей, спаренных оконных переплетов и других конструкций и деталей». И отдельно ставилась задача обеспечить новые дома новой же, подходящей под их небольшие размеры обстановкой: на местах должны были «организовать в необходимом количестве изготовление малогабаритной мебели и встроенного кухонного оборудования для квартир нового типа».
И был в постановлении еще один примечательный пункт – 35-й. Согласно ему, республиканские, краевые, областные и прочие власти должны в 1958 году построить в областных центрах и крупных городах достаточное число жилых домов по новым экономичным типовым проектам. Эти демонстрационные постройки, как говорилось в постановлении, должны были стать «по своему качеству, благоустройству, планировочным и конструктивным решениям…на ближайшие 3-5 лет образцом для государственного, индивидуального и колхозного жилищного строительства».

Классическая схема на кухне малогабаритной квартиры: даже семья из трех человек умещается в ней с некоторым трудом
Маленькая, но своя!
Но вместо трех-пяти лет эти «новые экономичные типовые проекты» стали образцом массового советского строительства на три с лишним десятка лет. Первые экспериментальные многоквартирные панельные многоэтажки появились в Москве в районе Черемушки еще в 1956 году: квартал получил название Новые Черемушки, и этот топоним быстро прижился в столице. Да и не только в ней: острый на язык советский народ очень быстро приклеил такое же название всем типовым кварталам, застроенным «хрущевками». Потому что и на первый, и на второй неискушенный взгляд они практически ничем друг от друга не отличались.
Впрочем, иначе и быть не могло. Еще до принятия постановления о развитии жилищного строительства Никита Хрущев обрушился с жесткой критикой на советских архитекторов и строителей, обвиняя их в неразумной трате сил и средств, которые идут на индивидуальные проекты жилых домов. Функциональность и скорость строительства — вот что требовалось стране, а при таких условиях никаких «украшательств» ждать не приходилось. Типовые новые дома мало отличались друг от друга, как и застроенные ими кварталы, — и советские люди быстро подметили эту особенность.

Возведение домов первой «хрущевской» серии К-7 в московском районе Хорошево-Мневники
Зато впервые за многие годы строительство жилья в стране действительно поставили на поток! Появились новые формы строительных трестов — так называемые домостроительные комбинаты, или ДСК, объединившие в себе все функции, от производства железобетонных конструкций и стеновых панелей до отделки уже построенного жилья. Понятно, что осваивать широкую номенклатуру конструктивных изделий ДСК попросту не могли, и поэтому всего за тринадцать лет применение типовых проектов в жилищном строительстве достигло 93,5% от общего его объема, а в культурно-бытовом — 85,7%. Впрочем, это вполне укладывалось в общую строительную политику страны: через год после постановления 1957 года вышло другое, называвшееся «О расширении применения типовых проектов в строительстве», которым сводилось к минимуму разнообразие типовых проектов.
Постоянное временное
По сути, жилищное строительство в стране стало конвейерным, и так же, как некогда выпуск автомобилей на конвейере превратил их из роскоши в средство передвижения, сделало отдельное жилье гораздо более доступным. И так же, как некогда с машинами, за это пришлось заплатить не только потерей индивидуальности, но и снижением комфорта. Но зато это было собственное жилье, в которое, согласно утвержденным нормам, полагалось селить только одну семью! Эпоха коммуналок, общежитий и бараков начала уходить в прошлое.

Будущие жители нового крупноблочного дома наблюдают за строительством своего жилья
К тому же небольшие «хрущевские» квартиры в обязательном порядке обладали удобствами, которые раньше были скорее опцией: центральным отоплением, холодным водоснабжением (а зачастую и горячим, хотя бы за счет газовой колонки или водонагревателя) и канализацией. Наличие всего этого уже делало «хрущевки» пригодными для жилья без оговорок, а с началом массового выпуска малогабаритной мебели, приспособленной именно под эти квартиры, получение такой жилплощади становилось для многих горожан заветной мечтой. Причем мечтой, которая исполнялась быстрее, чем прежде. С начала строительства первых прототипов «хрущевок» в 1956 году по 1963 год жилищный фонд СССР вырос почти вдвое: с 640 млн кв. м до почти 1,2 млрд. Этот прирост по размеру был больше, чем весь объем жилья, построенного за первые сорок советских лет! В одной только Москве, задыхавшейся от нехватки жилья еще с конца 1920-х, появилось за это время 36 млн квадратных метров жилплощади, что позволило переселить в новые квартиры около миллиона человек.
«Хрущевки» должны были стать своего рода переходным типом жилья, как это, собственно, и случилось уже в конце 1960-х, когда начали строить панельные высотные дома. Но первоначальные планы, что типовые пятиэтажки прослужат не больше 25 лет, не оправдались: некоторым из них сегодня исполняется по 60 лет и более. Сегодня эти квартиры с нормой в 8 квадратных метров на человека, с низкими потолками, маленькими кухнями, совмещенными санузлами и «хрущевскими холодильниками» под окном в кухне уже выглядят анахронизмом, но они позволили решить острейшую проблему нехватки жилья в стране. А еще позволили быстро строить его там, где никакого жилья не было в принципе, в том числе на Крайнем Севере и Дальнем Востоке: не один десяток военных городков или заводских поселков застраивался с нуля именно «хрущевками», что позволяло сразу же обеспечить жильем тех, кто в нем нуждался.

Фотография строительства одного из самых первых домов нового типового проекта в Москве в районе Черемушки
Читать еще: Цены на межевание земельного участка в Московской области
