Запрещена или нет перепланировка квартиры в панельных домах и какие есть типовые варианты передела коридора, ванной и санузла

Перепланировка в панельных домах подразумевает изменение первоначальной конструкции жилья, отраженной в документации БТИ.
Проектное решение может быть типовым, либо разработанным индивидуально.
Ремонт должен проводиться после согласования работ с соответствующими инстанциями и получения необходимого разрешения.
Чаще всего проходит перепланировка санузла и ванной комнаты в панельном доме.
Дорогие читатели! Наши статьи рассказывают о типовых способах решения юридических вопросов, но каждый случай носит уникальный характер.
Если вы хотите узнать, как решить именно Вашу проблему — обращайтесь в форму онлайн-консультанта справа или звоните по телефону +7 (499) 938-51-36 . Это быстро и бесплатно !
Возможна ли?
Многие граждане не знают, можно ли делать перепланировку в панельном доме.
При наличии разрешений можно производить следующие действия по перепланировке:

- Перенос стен, перегородок.
- Снос стен, перегородок.
- Расширение жилой части за счет площади кладовки, коридора и т.д.
- Организация дверных проемов.
- Закладывание проемов.
- Организация дополнительной кухни, санузла.
Существует определенный перечень работ, когда перепланировка в панельном доме запрещена:
- ухудшающие или разрушающие конструкцию несущих стен;
- повреждающие фасад;
- ухудшающие жилищные условия владельцев или их соседей;
- несогласованные со всеми собственниками (если объект в общей собственности у нескольких лиц);
- производимые в постройках под снос (если снос планируется в течение 3 лет) и т.д;
Согласование
Большое количество несущих стен в панельных домах значительно ограничивает возможности для проведения ремонта с переносом или сносом стен. Перепланировка квартиры в панельном доме должна быть узаконена.
Несогласованное преобразование жилья приведет к следующим последствиям:
- Нарушению юридической «чистоты» объекта недвижимости.
Квартира с незаконными изменениямине может быть продана, обменена и т.д. Для того чтобы получить возможность заключения сделок по данному жилью, необходимо придать ему первоначальный вид или узаконить изменения.
Порядок согласования
Перепланировка в панельных домах и процесс ее согласования при затрагивании несущих конструкций состоит из следующих этапов, общепринятых для всех домов данного типа:
- заказ инженерного обследования у организации, которая разрабатывала проект дома. Как правило, такой организацией является институт ГУП МНИИТЭП;
- выбираем типовые варианты перепланировки в панельном доме. При выборе типового проекта ремонта владельцы освобождаются от необходимости разработки индивидуального проекта, что значительно экономит время и деньги;
- разработка проекта перепланировки квартиры.
Проект проведения преобразований в панельном доме должен подготавливаться проектным институтом, либо организацией с допуском «проектного» СРО.
Проект перепланировки квартиры в панельном доме должен отвечать всем требованиям жилищного законодательства и установленным нормативам.
Только в этом случае можно рассчитывать на дальнейшее согласование перепланировки и получение разрешения.
Возможность преобразований в квартире во многом зависит от общего состояния здания, инженерных систем, перепланировок в соседних квартирах, этажа.
Почему пристройка балкон на первом этаже не каждому по карману? Читайте здесь сколько стоит пристройка балкона.
Варианты перепланировки
Чаще всего жильцы принимают решение переделать следующие комнаты:
- Нередко хозяева принимают решение расширить кухню. Сделать это достаточно сложно, поскольку с одной стороны находится несущая стена между кухней и жилой комнатой, а с другой стороны – санузел.
Увеличивать площадь кухни за счет уменьшения санузла не допускается.
Кроме того, между кухней и санузлом обычно проходит вентиляция, трогать которую запрещено.
Другое популярное решение при перепланировке кухни – объединение кухни и гостиной.
Если стена между ними не несущая, то возможно полностью ее снести и объединить комнаты.
Если стена несущая, то допускается организация в ней небольшого проема, усиленного металлоконструкцией.
Существует определенное ограничение для однокомнатных квартир – разрешается только наличие проема между кухней и гостиной. Полный снос стены не допускается, поскольку в этом случае помещение приобретает статус нежилого.
Перепланировка ванной комнаты в панельном доме. В отношении ванной обычно принимается решение о ее расширении либо объединении с туалетом.
Увеличение ванной комнаты возможно путем присоединения смежных нежилых помещений – коридора, гардеробной и т.д. Расширение за счет уменьшения площади жилых комнат не допускается. Также, не допускается перепланировка ванной в панельном доме над жилыми комнатами соседей снизу.
Объединение ванной и туалета без затрагивания несущих конструкций является распространенным вариантом перепланировки, который требует минимальных согласований без разработки проектных документов.
Помимо сноса стены часто производится перемещение сантехники, замена ванной на душевую кабину и т.д. При подобных изменениях важно придерживаться строительных норм.
Коридор обычно используется для увеличения других комнат. Его могут полностью устранить для расширения находящейся по соседству ванной комнатой, либо для увеличения жилых комнат.
Иногда хозяева стремятся, наоборот, расширить коридор за счет других комнат. Это решение позволяет организовать полноценную прихожую, либо сделать гардероб.
Примеры проектов
Ниже вы можете скачать и посмотреть реальные примеры проектов перепланировки в панельных домах.
Подробнее о согласовании последнего проекта (трехкомнатной квартиры в доме серии П-44) смотрите в видео.
Таким образом, перепланировка панельной квартиры является достаточно распространенным способом изменения стандартных размеров комнат и повышения уровня комфорта жильцов.
Не нашли ответа на свой вопрос? Узнайте, как решить именно Вашу проблему — позвоните прямо сейчас:
+7 (499) 938-51-36 (Москва)
+7 (812) 467-38-73 (Санкт-Петербург)
Перепланировка квартиры в панельном доме и ее особенности
В панельном доме есть свои нюансы при перепланировке. Перепланировка в панельном доме и доме со стеновыми конструкциями имеет значительные отличия. Необходимо:
- Рассчитывать размера проемов и определить, как они усилены, чтобы не снизить несущую способность;
- Соблюсти все технологии при вырезании и укреплении готового проема.
Также должно обязательно быть составлено заключение экспертов о том, что перепланировка не повлияла на несущую способность стены.
Какие документы должны быть оформлены при перепланировке квартиры в панельном доме
Для начала необходимо подать заявление в местную администрацию – в комиссию, которая рассматривает процессы использования жилья. На согласование в эту комиссию необходимо предоставить следующие документы:
заявление в той форме, которая требуется;
документы на собственность жилья;
проект самой перепланировки, который должен быть выполнен специальной организацией, оказывающей подобного рода услуги;
согласие от других жильцов квартиры в письменном виде;
если квартира расположена в здании, отнесенному к памятнику культуры, то требуется еще и справка, выданная соответствующим органом по охране таких сооружений.
Пакет документов должен быть отдан специалисту комиссии. Он, в свою очередь, должен произвести опись документов. На принятие решения комиссии дается сорок пять дней с того момента, как была произведена опись.
Важно учесть, что пока не получено решение комиссии, приступать к перепланировке запрещено.
При несогласии с перепланировкой в тексте соответствующего документа обязательно должна быть указана причина отказа.
Законодательно закреплена лишь одна причина для несогласия с перепланировкой – это нарушение требований проекта для перепланировки. Тем не менее, встречаются и другие причины, например:
желание собственников перенести санузел в ту комнату, под которой есть другие жилые помещения;
слишком большие проемы в несущих стенах;
перенесение кухни в жилую комнату;
снос или изменение конструкции вентиляционного стояка или коробов.
Какие существуют варианты перепланировки в панельном доме
Существует множество разных вариантов перепланировки жилья. Это может быть увеличение комнат за счет других, объединение кухни с гостиной, объединение санузла и многое другое. Именно от этого будет меняться и сложность выполнения перепланировки. Если вариант несложный и не затронет несущих стен и перекрытий, то согласование будет простым и быстрым, а исполнить задуманное можно будет самостоятельно. Варианты, когда затрагиваются несущие конструкции, будут тяжелы не только при согласовании, но и при исполнении. Но препятствовать желаниям владельцев никто не будет, если технически это возможно.
Конечно, самый лучший вариант, когда техническое заключение предоставляет та же компания, которая занималась проектированием строения. Такой проект будет учитывать не только основные характеристики, но и дополнительные нюансы:
– особенности объекта;
– изношенность несущих стен и перекрытий;
– как изменится нагрузка после перепланировки и т.п.
Сколько стоит перепланировка квартиры в панельном доме
Все затраты индивидуальны, ведь у каждого свой проект и свои пожелания, но в основном цена складывается из следующего:
– оплата за техническое заключение;
– оплата за получение всей проектной документации, например, дизайн-проект или эскизы;
– цена на материалы;
– стоимость услуг специализированной, имеющей лицензию, компании по строительным и монтажным работам.
Перепланировка квартиры в панельном доме, что можно?
устанавливать лоджии в квартирах, размещаемых на первых этажах (возможно только с согласия общедомового собрания);
объединять соседние квартиры по горизонтали и вертикали, если собственником является один человек;
перенос радиаторных батарей на другие стены;
соединять кухонные комнаты с электроплитой и жилые помещения путём демонтажа перегородки между ними;
установка электроплиты вместо газовой при достаточной выделенной мощности;
переустановка сантехнического оборудования (ванной, унитаза, душа и т.д.) в «мокрых» зонах;
остекление балконов, установка наружного кондиционеров (согласование не требуется);
изменение конструкции полов;
устройство проемов в стенах (несущих) домов панельного типа, возведенных до 2007 г. (допускается в домах поздних построек, если их автором не является НИИТЭП);
обустройство оконных проемов в несущих стенах домов, ширина и место проемов определяются по результатам обследования квартиры. В обязательном порядке монтируется система усиления из металлоконструкций;
проводить работы по демонтажу подоконного блока в домах, возведенных до 2007 г. (допускается в домах поздних построек, если их автором не является НИИТЭП);
изменять текущую конфигурацию не несущих перегородок, разделяющих комнаты, либо комнаты и гардеробные, кладовые, коридоры и другие вспомогательные помещения;
расширять санузел или мокрые зоны на территорию нежилых помещений с обязательным устройством гидроизоляции в полу расширенной части;
переносить, либо расширять кухню за счет нежилого дополнительного помещения (кладовой, коридора).
Перепланировка квартиры в панельном доме, что нельзя?
повреждать несущие стены без наличия соответствующего согласования с проектной организацией;
объединять газифицированную кухню и жилую комнату;
устройство лоджий на всех этажах (за исключением первого);
заниматься перепланировкой чердака или технического этажа, если отсутствует право собственности на них. Часто собственники квартиры на последних этажах хотят частично присоединить чердак и сделать на неё лестницу из квартиры. Этим пунктом вводится запрет на подобные действия, связанные с перепланировкой;
устройство штраб в несущих стенах;
нарушать целостность несущих колонн, пилонов или диафрагм жесткости;
устройство штраб в несущих стенах;
установка теплых полов, которые нагреваются от систем отопления или горячего водоснабжения (устройство электрических теплых полов не запрещено);
перенос отопительных батарей на балкон / лоджию;
повышать уровень нагрузки на перекрытия при заливки стяжки или смены материала;
демонтаж или изменение вентиляционных каналов, имеющихся в доме;
проведение врезки в коммуникации общедомового значения устройств регулирующего или отключающего действия;
врезка в общедомовые коммуникации отключающих или регулирующих устройств;
нарушать несущие конструкции здания (демонтаж несущих стен или устройство в них проемов без получения соответствующего разрешения)
любые мероприятия, ухудшающие условия проживания других лиц или ограничивающие доступ к общедомовым коммуникациям.
Требования санитарно-гигиенических, строительных и правовых норм, устанавливающие запрет на выполнение определенных типов перепланировки:
расширение или перенос санузлов, ванных комнат, туалетов, душевой и прочего в зону кухни или жилой комнаты (пункт 9.25 СП 54.13330.2016 и п. 3.8 СаНПиН 2.1.2.2645-10). Сюда не входят помещения для стирки, т.к. стиральная машина не указывается на планах БТИ. Данный пункт также не действует, если этажом ниже под жилой площадью располагаются нежилые или подвальные помещения;
перенос либо обустройство кухни в пределах жилой зоны квартиры (постановление от 26 января 2006 г. под №47, пункт 24). Этот пункт не берется в расчет, если под жилплощадью размещено нежилое помещение, в этом случае, ухудшение условий исключено;
обустройство структуры пола в санузле без наличия порожка, либо занижения на 1,5-2 см относительно к смежному помещению (пункт 4.11 «Технических требований и правил проектирования, устройства, приемки, эксплуатации и ремонта»/СниП 2.03.13-88 «Полы»);
обустройство полов в санитарных узлах и прочих «мокрых» зонах без гидроизоляции (СниП 2.03.13-88 «Полы»);
демонтаж порожков при выходе на балкон в домах панельного типа;
демонтаж подоконных блоков или устройство проемов в несущих стенах в типовых домах после 2007-ого года постройки, если автором выступал МНИИТЭП (при отсутствии разрешения последнего);
устройство кухонного пространства без естественного освещения (пункт 5.1 СанПиН 2.1.2.2645-10 и пункт 9.12 СниП от 31/03/2003 г.);
организация кухни-ниши площадью менее 5 кв.м.;
объединение вентиляции санузла и кухни (запрещается пунктом 9.7. СП 54.13330.2011);
обустройство выхода из помещения с унитазом (санузел, туалет) в кухню, либо комнату (п. 3.9 СанПиНа 2.1.2.2645-10). Предусмотреть выход из санузла / туалета в комнату можно, но при условии наличия второго санузла, имеющего выход в коридор. Выход из душевой или ванной комнаты (помещения без унитаза) можно осуществлять в любые комнаты;
расширение проемов в наружных стенах при выходе к балкону (лоджии) в панельных, т.к. на это не дают своего согласия авторы проекта дома;
демонтаж фрагментов стены (несущей) на выходе на балкон в монолитных домах, если при этом не останется на всю квартиру хотя бы один противопожарный простенок длиной 1,2 метра от края балкона до проема, либо длиной 1,6 метра между 2 выходами на балкон (пункт 6.20 СНиП 21/01/97 г.);
объединение квартир, находящихся в собственности разных граждан (согласно пункту 1 статьи 40 Жилищного кодекса РФ).
Наши специалисты окажут квалифицированную помощь по согласованию перепланировки квартиры в панельном доме в максимально короткие сроки. Мы имеем большой опыт сотрудничества со всеми учреждениями, от которых зависит принятие решений.

Нужна консультация? Остались вопросы?
Обратитесь к нам и получите квалифицированную консультацию по вопросам, связанным с ценой на согласование перепланировки квартиры в панельном доме!
Оставьте заявку на бесплатную консультацию прямо сейчас!
Как объединить квартиры в одну?
Объединение жилых площадей Помощь в объединение квартир по горизонтали и вертикали [. ]
Соединение балкона или лоджии с комнатой
Добавляем полезную площадь однокомнатной квартиры Поможем присоединить лоджию / балк [. ]
Каковы особенности свободной планировки?
Свободная планировка квартиры Каковы особенности свободной планировки? Если в [. ]
Перепланировка квартиры в панельном доме
В квартире тесно, неуютно и неудобно? На кухне нельзя развернуться, зато в гостиной можно проводить балы? В ванную никак нельзя установить стиральную машину? Хороший выход из ситуации – перепланировка. В статье расскажем, можно ли делать перепланировку в панельном доме, что одобрят, а что точно нет, и подскажем, какие изменения можно внести в каждую комнату.

Юридические аспекты
Процесс перепланирования связан с ограничениями в плане демонтажа перегородок. В крупнопанельных постройках много несущих стен, которые нельзя демонтировать. Оптимальное решение – создание проемов в виде ниш с обязательным усилением. Они не должны быть выбиты – только вырезаны, без затрагивания вентиляционных каналов.
Важно! Расположение и параметры ниш предварительно рассчитываются. Любое затрагивание стен с нарушением конфигурации комнат требует предварительного согласования и документированного разрешения.
Перепланировку в панельном доме провести можно. Главное, чтобы работы, выполняемые в рамках процесса, не были запрещены текущим законодательством.
Что разрешено?
переносить, расширять кухню за счет нежилых помещений (коридора, кладовой), увеличивать площадь санузла с обязательной гидроизоляцией пола;
создавать новые дверные проемы в несущей перегородке;
менять конфигурации разделительных перегородок, конструкцию пола, расположение сантехники, переносить отопительные приборы;
менять газовую плиту на электрическую, объединять такую кухню с другой комнатой;
объединять соседние по лестничной клетке помещения для расширения площади, ставить балкон на первом этаже.
Главное – согласовывать любые изменения с жилищной инспекцией. Планируемые изменения должны быть отражены в проекте перепланировки – пакете документов с подробным расписанием всех запланированных работ.

Что запрещено?
ухудшать условия проживания других жильцов (обшивать, переносить стояки, закрывать доступ к ним);
сносить несущие стены, делать в них проемы без предварительного разрешения и усиления, вмешиваться в общедомовые коммуникации, отключать системы;
менять домовые вентиляционные каналы, увеличивать нагрузку на перекрытия, переносить отопление на лоджию или балкон, подключать теплый пол к центральному отоплению;
штробить несущие конструкции, нарушать целостность колонн;
делать новые лоджии (кроме первого этажа), проводить перепланировку техэтажа или чердака.
Важно! Нельзя объединять комнату если установлена газовая плита, делать проемы в перегородке без двери. На эти работы нужно предварительное разрешение.
Подготовка технического заключения
Сначала составляется техническое заключение. Для этого проводится оценка состояние дома и квартиры в целом. После чего составляется документ, который прогнозирует, как именно перепланировка повлияет на жизнь людей.
Всё включено
В стоимость ремонта входит всё: работы, материалы, документы.
Без вашего участия
После согласования проекта мы беспокоим хозяев только при сдаче ремонта.
Цена известна заранее
Стоимость ремонта фиксируется в договоре.
Фиксированный срок ремонта
Ремонт квартиры под ключ за 3,5 месяца. Срок закреплен в договоре.
Если были обнаружены дефекты, составляется акт с указанием неполадок, требующих устранения. Там четко прописывается, возможна или невозможна перепланировка.
Обязательные пункты технического заключения:
серия и год возведения дома;
этаж, где находится рассматриваемая квартира;
качество близлежащих несущих конструкций.
Документ выдается, когда нужно определить возможность переустройства или подтвердить безопасность уже выполненных работ. Он является основанием для выдачи нового паспорта в БТИ.

Проект на базе технического заключения
Если предполагается изменение несущих конструкций, разгружающих перегородок, прослойки пола, перенос или замена коммуникаций, понадобится проектное решение. Оно составляется на основе техзаключения. Обязательно содержит подробное описание объекта, акт-обязательство заказчика и разработчика проекта с подписью и оцениванием руководителя последнего.
В проект включается нормативно-правовая документация по квартире, архитектурные и строительные решения – в частности, изменения, которые планируется внести в конструкцию жилплощади. Указываются противопожарные мероприятия, даются планы выполнения работ согласно техпаспорту с фотографиями. План перепланировки предполагает отмечание красным демонтируемых, и зеленым – новых перегородок.
Дополнительно, должны быть планы полов, санузла, канализации, водоснабжения и схемы изменения перекрытий из гипсокартона.
Важные нюансы
С перепланировкой квартиры в «панельке» сложности часто возникают из-за несущих стен. Провести незначительные изменения – например, перенести проем в гипсокартонной перегородке – можно самостоятельно без лишних проблем. Но если запланированы серьезные преобразования с объединением комнат, выход один – узнать, какие стены несущие.
Самый простой способ – измерить ширину. Если она больше 12-14 см, тогда конструкция капитальная, и сносить ее нельзя. С более тонкими перегородками сложностей не возникнет.

Возможность перепланировки зависит и от этажа, на котором расположена квартира. Чем выше она находится, тем меньше нагрузка на перекрытия и проще сделать проем. Внизу на его создание могут не дать разрешения, или сильно ограничить размеры. Еще один важный фактор – наличие подобных перепланировок у соседей снизу или сверху.
Варианты перепланировки
Намечая перепланировку в панельном доме, хозяева обычно хотят изменить площадь или количество помещений. Самыми тесными комнатами в таких зданиях являются кухни, санузлы и ванные. Иногда они бывают совсем миниатюрными, тогда расширение – не прихоть, а жизненная необходимость.
Большинство владельцев жилплощади готовы пожертвовать несколькими квадратными метрами этого помещения для расширения санузла или кухни. В одних случаях от него почти полностью избавляются, расширяя таким образом ванную, в других – объединяют с гостиной, превращая обычную квартиру в студию.
Интересный факт! При задействовании смежных жилых комнат получится полноценная входная зона. Ее гармонично дополнит большая гардеробная.
Варианты трансформации пространства:
демонтаж перегородок (настолько позволяют условия);
распределение функциональных зон – отделение гардеробной, создание дополнительного места для отдыха;
перенос дверного проема.
Если места под большой гардероб нет, его заменят вешалки и полочки для верхней одежды и обуви.
Как правило, ее стремятся соединить с жилой комнатой. В панельном здании такую задачу не всегда можно реализовать. Если стена между помещениями несущая, полностью снести ее не получится. Придется выбирать альтернативные варианты:
обустроить проем, усиленный металлоконструкциями;
снять дверь, сделав вместо нее арку;
установить компактные батареи;
если кухня совмещена с кладовкой, пробить разделяющую стену (как правило, это не несущая перегородка) и обустроить пространство для стиральной и посудомоечной машины;
убрать дверь на лоджию, и вместо подоконника поставить барную стойку или столешницу.
Не дадут разрешения на объединение кухни с комнатой в однокомнатной квартире, ведь тогда она автоматически получит статус нежилой.

Также препятствием станет газовая плита. По нормам законодательства, вход на кухню с таким оборудованием должен закрываться дверью. Варианты – заменить газовое оборудование на электрическое или поставить формальную перегородку либо дверь.
В типовых зданиях она достаточно узкая, тесная и слишком миниатюрная для комфортного использования. Существует несколько вариантов увеличения площади:
Присоединение уборной (если они раздельные). Здесь можно обойтись без полного сноса перегородки, оставив небольшую часть, визуально разделяющую две зоны. Она хороша в качестве полочки для туалетных принадлежностей.
Замена сантехники. Можно установить более компактные приборы, установить вместо ванны душевую кабину. Важно не размещать оборудование на стенах, смежных с жилплощадью. Электронасосы и шумные устройства нельзя монтировать без звукоизоляции.
Перенос на другое место. Здесь есть ряд запретов, потому такие действия обязательно согласовываются в Жилинспекции.
Расширение за счет коридора.
Увеличивать размеры ванной за счет жилой площади запрещено.
Объединить две разделенных части не получится, если между ними установлена капитальная стена. Такое встречается редко, поэтому совмещение – вполне реальный вариант. Получится дополнительное пространство для размещения бойлера, стиральной машины, хозяйственных, туалетных принадлежностей.
Второй способ – снятие сантехкабины. Это блок, состоящий из стен, перекрытия, пола и потолка, с подготовленными техническими отверстиями и нишами под разводку труб, электрики. Если полностью снести сантехкабину, появится дополнительное место для организации студии с присоединением части коридора.

Как заказать перепланировку?
Услуга комплексного ремонта, включающая перепланировку, будет называться капитальной реконструкций жилища. Это трудоемкий процесс, в которую вовлечены разные профессионалы:
Документация по такому ремонту должна обязательно включать техническое заключение и проект. Осмотром, анализом, оцениванием, составлением бумаг занимаются только специалисты с практическим опытом. Услуга комплексного ремонта с перепланировкой в профессиональной компании включает все этапы работы с документацией, с соблюдением требований законодательства.
Кроме того, если запланированные изменения в квартире законом запрещены, архитектор с богатым опытом подскажет иногда неожиданные, но эффективные решения, которые решат вашу проблему без проведения перепланировки.
Ремонтники, в свою очередь, выполнят все работы в соответствии с планом, и превратят неуютное и неудобное жилище в райский уголок.
Перепланировка квартиры в панельном доме и ее особенности
В панельном доме есть свои нюансы при перепланировке. Перепланировка в панельном доме и доме со стеновыми конструкциями имеет значительные отличия. Необходимо:
- Рассчитывать размера проемов и определить, как они усилены, чтобы не снизить несущую способность;
- Соблюсти все технологии при вырезании и укреплении готового проема.
Также должно обязательно быть составлено заключение экспертов о том, что перепланировка не повлияла на несущую способность стены.
Какие документы должны быть оформлены при перепланировке квартиры в панельном доме
Для начала необходимо подать заявление в местную администрацию – в комиссию, которая рассматривает процессы использования жилья. На согласование в эту комиссию необходимо предоставить следующие документы:
заявление в той форме, которая требуется;
документы на собственность жилья;
проект самой перепланировки, который должен быть выполнен специальной организацией, оказывающей подобного рода услуги;
согласие от других жильцов квартиры в письменном виде;
если квартира расположена в здании, отнесенному к памятнику культуры, то требуется еще и справка, выданная соответствующим органом по охране таких сооружений.
Пакет документов должен быть отдан специалисту комиссии. Он, в свою очередь, должен произвести опись документов. На принятие решения комиссии дается сорок пять дней с того момента, как была произведена опись.
Важно учесть, что пока не получено решение комиссии, приступать к перепланировке запрещено.
При несогласии с перепланировкой в тексте соответствующего документа обязательно должна быть указана причина отказа.
Законодательно закреплена лишь одна причина для несогласия с перепланировкой – это нарушение требований проекта для перепланировки. Тем не менее, встречаются и другие причины, например:
желание собственников перенести санузел в ту комнату, под которой есть другие жилые помещения;
слишком большие проемы в несущих стенах;
перенесение кухни в жилую комнату;
снос или изменение конструкции вентиляционного стояка или коробов.
Какие существуют варианты перепланировки в панельном доме
Существует множество разных вариантов перепланировки жилья. Это может быть увеличение комнат за счет других, объединение кухни с гостиной, объединение санузла и многое другое. Именно от этого будет меняться и сложность выполнения перепланировки. Если вариант несложный и не затронет несущих стен и перекрытий, то согласование будет простым и быстрым, а исполнить задуманное можно будет самостоятельно. Варианты, когда затрагиваются несущие конструкции, будут тяжелы не только при согласовании, но и при исполнении. Но препятствовать желаниям владельцев никто не будет, если технически это возможно.
Конечно, самый лучший вариант, когда техническое заключение предоставляет та же компания, которая занималась проектированием строения. Такой проект будет учитывать не только основные характеристики, но и дополнительные нюансы:
– особенности объекта;
– изношенность несущих стен и перекрытий;
– как изменится нагрузка после перепланировки и т.п.
Сколько стоит перепланировка квартиры в панельном доме
Все затраты индивидуальны, ведь у каждого свой проект и свои пожелания, но в основном цена складывается из следующего:
– оплата за техническое заключение;
– оплата за получение всей проектной документации, например, дизайн-проект или эскизы;
– цена на материалы;
– стоимость услуг специализированной, имеющей лицензию, компании по строительным и монтажным работам.
Перепланировка квартиры в панельном доме, что можно?
устанавливать лоджии в квартирах, размещаемых на первых этажах (возможно только с согласия общедомового собрания);
объединять соседние квартиры по горизонтали и вертикали, если собственником является один человек;
перенос радиаторных батарей на другие стены;
соединять кухонные комнаты с электроплитой и жилые помещения путём демонтажа перегородки между ними;
установка электроплиты вместо газовой при достаточной выделенной мощности;
переустановка сантехнического оборудования (ванной, унитаза, душа и т.д.) в «мокрых» зонах;
остекление балконов, установка наружного кондиционеров (согласование не требуется);
изменение конструкции полов;
устройство проемов в стенах (несущих) домов панельного типа, возведенных до 2007 г. (допускается в домах поздних построек, если их автором не является НИИТЭП);
обустройство оконных проемов в несущих стенах домов, ширина и место проемов определяются по результатам обследования квартиры. В обязательном порядке монтируется система усиления из металлоконструкций;
проводить работы по демонтажу подоконного блока в домах, возведенных до 2007 г. (допускается в домах поздних построек, если их автором не является НИИТЭП);
изменять текущую конфигурацию не несущих перегородок, разделяющих комнаты, либо комнаты и гардеробные, кладовые, коридоры и другие вспомогательные помещения;
расширять санузел или мокрые зоны на территорию нежилых помещений с обязательным устройством гидроизоляции в полу расширенной части;
переносить, либо расширять кухню за счет нежилого дополнительного помещения (кладовой, коридора).
Перепланировка квартиры в панельном доме, что нельзя?
повреждать несущие стены без наличия соответствующего согласования с проектной организацией;
объединять газифицированную кухню и жилую комнату;
устройство лоджий на всех этажах (за исключением первого);
заниматься перепланировкой чердака или технического этажа, если отсутствует право собственности на них. Часто собственники квартиры на последних этажах хотят частично присоединить чердак и сделать на неё лестницу из квартиры. Этим пунктом вводится запрет на подобные действия, связанные с перепланировкой;
устройство штраб в несущих стенах;
нарушать целостность несущих колонн, пилонов или диафрагм жесткости;
устройство штраб в несущих стенах;
установка теплых полов, которые нагреваются от систем отопления или горячего водоснабжения (устройство электрических теплых полов не запрещено);
перенос отопительных батарей на балкон / лоджию;
повышать уровень нагрузки на перекрытия при заливки стяжки или смены материала;
демонтаж или изменение вентиляционных каналов, имеющихся в доме;
проведение врезки в коммуникации общедомового значения устройств регулирующего или отключающего действия;
врезка в общедомовые коммуникации отключающих или регулирующих устройств;
нарушать несущие конструкции здания (демонтаж несущих стен или устройство в них проемов без получения соответствующего разрешения)
любые мероприятия, ухудшающие условия проживания других лиц или ограничивающие доступ к общедомовым коммуникациям.
Требования санитарно-гигиенических, строительных и правовых норм, устанавливающие запрет на выполнение определенных типов перепланировки:
расширение или перенос санузлов, ванных комнат, туалетов, душевой и прочего в зону кухни или жилой комнаты (пункт 9.25 СП 54.13330.2016 и п. 3.8 СаНПиН 2.1.2.2645-10). Сюда не входят помещения для стирки, т.к. стиральная машина не указывается на планах БТИ. Данный пункт также не действует, если этажом ниже под жилой площадью располагаются нежилые или подвальные помещения;
перенос либо обустройство кухни в пределах жилой зоны квартиры (постановление от 26 января 2006 г. под №47, пункт 24). Этот пункт не берется в расчет, если под жилплощадью размещено нежилое помещение, в этом случае, ухудшение условий исключено;
обустройство структуры пола в санузле без наличия порожка, либо занижения на 1,5-2 см относительно к смежному помещению (пункт 4.11 «Технических требований и правил проектирования, устройства, приемки, эксплуатации и ремонта»/СниП 2.03.13-88 «Полы»);
обустройство полов в санитарных узлах и прочих «мокрых» зонах без гидроизоляции (СниП 2.03.13-88 «Полы»);
демонтаж порожков при выходе на балкон в домах панельного типа;
демонтаж подоконных блоков или устройство проемов в несущих стенах в типовых домах после 2007-ого года постройки, если автором выступал МНИИТЭП (при отсутствии разрешения последнего);
устройство кухонного пространства без естественного освещения (пункт 5.1 СанПиН 2.1.2.2645-10 и пункт 9.12 СниП от 31/03/2003 г.);
организация кухни-ниши площадью менее 5 кв.м.;
объединение вентиляции санузла и кухни (запрещается пунктом 9.7. СП 54.13330.2011);
обустройство выхода из помещения с унитазом (санузел, туалет) в кухню, либо комнату (п. 3.9 СанПиНа 2.1.2.2645-10). Предусмотреть выход из санузла / туалета в комнату можно, но при условии наличия второго санузла, имеющего выход в коридор. Выход из душевой или ванной комнаты (помещения без унитаза) можно осуществлять в любые комнаты;
расширение проемов в наружных стенах при выходе к балкону (лоджии) в панельных, т.к. на это не дают своего согласия авторы проекта дома;
демонтаж фрагментов стены (несущей) на выходе на балкон в монолитных домах, если при этом не останется на всю квартиру хотя бы один противопожарный простенок длиной 1,2 метра от края балкона до проема, либо длиной 1,6 метра между 2 выходами на балкон (пункт 6.20 СНиП 21/01/97 г.);
объединение квартир, находящихся в собственности разных граждан (согласно пункту 1 статьи 40 Жилищного кодекса РФ).
Наши специалисты окажут квалифицированную помощь по согласованию перепланировки квартиры в панельном доме в максимально короткие сроки. Мы имеем большой опыт сотрудничества со всеми учреждениями, от которых зависит принятие решений.

Нужна консультация? Остались вопросы?
Обратитесь к нам и получите квалифицированную консультацию по вопросам, связанным с ценой на согласование перепланировки квартиры в панельном доме!
Оставьте заявку на бесплатную консультацию прямо сейчас!
Как объединить квартиры в одну?
Объединение жилых площадей Помощь в объединение квартир по горизонтали и вертикали [. ]
Соединение балкона или лоджии с комнатой
Добавляем полезную площадь однокомнатной квартиры Поможем присоединить лоджию / балк [. ]
Каковы особенности свободной планировки?
Свободная планировка квартиры Каковы особенности свободной планировки? Если в [. ]
Перепланировка квартиры в панельном доме
Специальные условия по согласованию перепланировок, резке и усилению проемов несущих стен в панельных домах автора МНИИТЭП
Подробнее здесь
Быстро, качественно, низкие цены, имеется допуск СРО.



Вариантов перепланировки квартиры в панельном доме существует немало, и большинство из них направлены на расширение самых тесных помещений — кухни, ванной комнаты и санузла.
Если вы намереваетесь провести незначительные изменения, например, перенести проем в гипсокартонной перегородке, то согласовать перепланировку вашей панельной квартиры можно будет и самостоятельно. Однако в большинстве случаев предусматриваются сложные преобразования, с затрагиванием капитальных конструкций. Это обусловлено тем, что большинстве панельных домов типовых серий большинство межкомнатных стен являются несущими.
Чтобы понять, что можно, а что нельзя делать при сложной перепланировке квартиры в том или ином панельном доме, понадобится техническое заключение о возможности перепланировки. На основании данного документа затем составляется проект перепланировки квартиры в панельном доме.
Возможность перепланировки квартиры в панельном доме с затрагиванием несущих конструкций зависит от состояния самого здания, его инженерных систем, а также наличия перепланировок у соседей.
К примеру, у вас не получится изменить планировку с проемом в несущей стене, если в доме планируется проведение капитального ремонта или у соседей сверху/снизу уже сделан аналогичный проем.
Перепланировка коридора в панельном доме
При проведении перепланировки квартиры в панельном доме нередко затрагивается коридор. От него либо стараются избавиться, расширив на него ванную, либо объединяют с жилой комнатой.
Нередко коридор, наоборот, расширяют за счет смежных жилых помещений до полноценной входной зоны. Такой вариант перепланировки коридора в квартире панельного дома дает возможность обустроить стильную и современную гардеробную.
Перепланировка кухни в панельном доме
Если вы хотите выполнить в своей панельной квартире довольно популярный вариант перепланировки — объединение кухни и комнаты, то перед тем как начинать работы, стоит проконсультироваться у специалистов из проектной организации о возможности объединения помещений.
Если стена между помещениями окажется несущей, то от полного ее сноса придется отказаться, хотя плюсы от проведения такой перепланировки в типовой квартире панельного дома очевидны. Но всеми возможностями, которые дает объединение помещений кухни и комнаты можно будет воспользоваться только в том случае, если они разделены ненесущей перегородкой.
Если все-таки стена окажется несущей, то при определенных условиях возможно будет лишь устроить дверной проем, и только с условием его усиления при помощи металлоконструкций.
Жилищная инспекция не даст разрешение на перепланировку кухни в панельном доме и в том случае, если речь идет об однокомнатной квартире. Это ограничение касается не только квартир в панельных домах, но и в любых других, ведь получившаяся при объединении помещений гостиная будет иметь статус нежилого помещения, а это значит, что и вся квартира будет считаться нежилой.
Сложности возникнут и в том случае, если на кухне стоит газовая плита — полное объединение помещений также будет невозможно. Придется либо менять газовую плиту на электрическую, либо устанавливать дверь или дополнительную перегородку, формально разделяющую помещения кухни и комнаты.
Перепланировка ванной и санузла в панельном доме
Объединение ванной комнаты и туалета — также довольно распространенный вариант перепланировки в панельном доме. При организации совмещенного санузла изменения порой касаются не только стен.
Для более рационального использования его площади требуется перестановка сантехники, или замена ванны на душевую кабину.
Согласование такой перепланировки без затрагивания несущих конструкций, проходит обычно в упрощенной форме, без разработки проектной документации.
Более сложный вариант — перепланировка ванны и санузла с расширением получившегося помещения за счет смежного коридора. В этом случае разработка проектной документации обязательна из-за необходимости укладки гидроизоляционного покрытия, которое означает изменение конструкции пола.
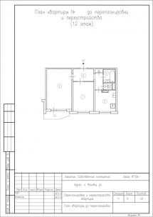
Пример перепланировки двухкомнатной панельной квартиры
Проект перепланировки ванной и санузла в панельном доме серии П-3:



Проект перепланировки в панельном доме
Итак, большинство перепланировок в домах панельного типа в силу конструктивных особенностей зданий требуют разработки проектной документации с техническим заключением .
Нередко складываются ситуации, когда владелец жилья обращается к дизайнеру за разработкой проекта для своей квартиры, тот готовит вариант, учитывающий все пожелания заказчика, но в дальнейшем попытки согласовать его обречены на провал. Почему так происходит?
Дело в том, что юридическую силу имеют только проекты, разработанные проектным институтом-автором дома или коммерческими организациями с допуском СРО. Выбранная вами организация, на основании технического обследования и инженерных расчетов в соответствии с действующими нормативами, разработает такой проект перепланировки, который затем можно будет без труда согласовать в жилищной инспекции.
Согласование перепланировки квартиры в панельном доме
Согласовывать перепланировку в панельном доме можно самостоятельно, а можно обратиться к посредническим организациям. Как правило, простые работы по перепланировке, не затрагивающие несущие стены и инженерные коммуникации, можно согласовать в уведомительном порядке, с минимальным количеством разрешений и документов. Обычно такие согласования проходят в достаточно короткий срок (1-2 месяца).
Но если на самостоятельное согласование — сбор документов, прохождение инстанций, у вас нет ни времени, ни терпения, или ваша перепланировка требует разработки проекта перепланировки с ТЗ, то лучшим решением будет обращение к посредникам.
Выбирая подходящую организацию, обратите внимание, прежде всего на ее опыт работы в данной сфере, отзывы клиентов, которые уже воспользовались данной услугой.
Опыт показывает, что при согласовании сложных перепланировок по проекту в панельном доме, обращение к посредникам позволяет получить разрешения в минимальный срок, а порой даже сэкономить на этапе подготовки к работам.
Перепланировка в панельном доме фото:
Перепланировка трехкомнатной квартиры панельного дома
Данный проект перепланировки был реализован в трешке панельного дома П-49Д. Проектом предусматривался проем между кухней и комнатой, демонтаж подоконного блока с заменой его на стеклянную перегородку и объединение туалет с ванной. В совмещенном санузле менялась расстановка сантехники, а на кухне передвинули электроплиту и раковину.



Перепланировка трехкомнатной квартиры в доме серии П-44:






