Перепланировка трехкомнатной квартиры
Вариантов перепланировки трехкомнатной квартиры существует немало. Однако популярностью пользуются немногие, к тому же полет дизайнерской фантазии часто ограничен конструктивом дома и жилищным законодательством.
Самый «благодарный» вариант для перепланировки — трешки в кирпичных или монолитных домах. Так как в подобных зданиях редко попадаются несущие внутриквартирные стены, то конфигурировать помещения можно различными способами (главное — не нарушать при этом установленных норм и правил). То же относится и к трехкомнатным квартирам в хрущевках — несущих стен в них также немного (за исключением блочных хрущевок, где капитальные стены нередко бывают в габаритах квартиры).
Что касается перепланировок 3 комнатных квартир в панельных домах брежневских серий, в также их модернизированных версий, то тут ограничений существенно больше. Здесь многие межкомнатные стены — несущие, сносить их нельзя, а возможность и место устройства нового дверного проема в них определяется выводами технического заключения от автора дома.
При перепланировках 3 комнатных квартир, как и любых других, наиболее востребовано объединение кухни с одной из комнат. Когда стена между помещениями является перегородкой из ГКЛ, можно сделать большую столовую. Однако если на кухне установлена газовая плита, достигнуть полного соединения помещений не удастся, поскольку это запрещает п.11.17 Приложения 1 ППМ 508. На практике данный запрет обходится установкой сдвижной перегородки или дверного блока, аналогичного устройству дверей шкафа-купе. И в итоге у вас получается отдельная кухня с проходом в просторную гостиную-столовую.
Не менее распространено и расширение и/или совмещение туалета и ванной. Поскольку данные помещения в типовых квартирах чрезвычайно малы, их обычно объединяют друг с другом посредством демонтажа сантехкабины или сноса перегородки между ними. Расширяют совмещенный таким образом санузел обычно на прилегающий коридор (тот, что ведет из прихожей в кухню).
Что касается коридора, который расположен между комнатами, то в нем часто устраивают встроенную мебель или кладовые, поскольку коридоры трехкомнатных квартир более просторные, нежели в двушках и однушках и позволяют использовать излишки площади таким образом. Бывает и так, что стену, отделяющую коридор от одной из комнат, сносят (если это перегородка), и тогда помещения разграничивают напольным покрытием или иным способом, например с помощью декоративных элементов.
Перепланировка 3х комнатной в 4х комнатную встречается редко, а вот обратный случай, то есть из двушки в трешку — намного чаще.
Примеры проектов перепланировки трехкомнатных квартир
(планы до, после и демонтаж-монтаж):
Перепланировка 3 комнатной квартиры в панельной хрущевке серии 1-511
Здесь был реализован довольно стандартный объем мероприятий: снесена перегородка между кухней и комнатой, а вместо нее поставлен большой дверной блок во всю длину бывшей стенки. Туалет присоединили к ванной, причем площадь помещения слегка уменьшилась (срезан угол). Обычно бывает наоборот — совмещенный санузел расширяют на коридор, ведущий в кухню. Однако в этом случае требуемый участок коридора был занят гарберобной (6а). Перегородка и встроенная мебель, отделявшая смежную с кухней комнату от коридора были демонтированы, а жилую и нежилую зону разделили при помощи напольных покрытий.



Проект 3х комнатной квартиры в панельном доме серии II-49Д
Устроен проем в несущей стене между кухней и комнатой (ширина 90 см). Теперь в кухню можно будет попасть только оттуда, поскольку проход через прихожую закрыт совмещенным санузлом. Часть комнаты (2) отдали в пользу устройства новой кладовки и удлиннения коридора, причем встроенный шкаф, относившийся к комнате (2а), стал частью коридора (6а).



Перепланировка трехкомнатной квартиры в серии П 3М
Примечательно, что площадь санузла и ванной удалось увеличить в два раза благодаря широкому коридору. Проем между кухней и комнатой не имеет двери, поскольку плита стоит электрическая.



Перепланировка трехкомнатной квартиры в сталинском доме
Перепланировка трехкомнатной квартиры в пятиэтажном довоенном жилом здании заключалась в устройстве более просторного санузла, для чего объединили ванную с туалетом и расширили получившееся единое помещение на коридор. Кроме того, один из встроенных шкафов, обозначенный на планах как отдельное помещение, был демонтирован, что позволило сделать площадь жилой комнаты на 0,5 кв. м больше.
Доступ в другой шкаф организовали из коридора, пробив в ненесущей перегородке проем и заложив прежний из комнаты. А между кухней и еще одним жилым помещением установили раздвижную дверь с плотным притвором, предварительно демонтировав часть межкомнатной перегородки.



Перепланировка трешки в кирпичном доме нетиповой серии
Эта перепланировка трехкомнатной квартиры интересна тем, что в процессе ремонта было устроено 6 встроенных шкафов, а также в двух комнатах — на кухне и в жилом помещении — демонтированы подоконные блоки. Кроме того, в рамках перепланировки увеличелась площадь кухни, были устроены совмещенный санузел и подсобное помещение.



Типовые решения для перепланировки 3х комнатных квартир в домах, разработанных ГУП МНИИТЭП:
Типовые проекты трешек для серий панельных домов II-57, П 30, П 44, П 55.
Перепланировка 3-комнатной квартиры
в обычной панельной “девятиэтажке”. Возможные варианты.
Здесь я хочу рассмотреть варианты перепланировки 3-комнатной квартиры так называемой “улучшенной планировки” в самой обычной панельной девятиэтажке. Серию этих квартир я не знаю…, да и Вы наверняка, тоже. Все они стандартные, очень похожие друг на друга. Размеры тоже совпадают. И, казалось бы, много ли вариантов изменить эту квартиру? Не много, но они есть.
Итак. Вернемся с небес на землю. Перспектива покупки огромной квартиры во вновь построившемся доме в центре города пока не для Вас. Вам же приходится довольствоваться своей старенькой уютной квартирой, площадью, скажем, в привычные 62 метра. То есть трехкомнатной квартирой улучшенной планировки в панельной девятиэтажке. Совсем не плохо, скажу Вам это откровенно!
Уют уютом, а хочется жить в ногу со временем, наслаждаться современным интерьером, наклеить модные обои, поставить дорогую сантехнику в просторный санузел (а не в ту тесную шиферную коробку, в которой едва уместилась ваша ванна). Поэтому пришла пора подумать о перепланировке нашей 3-комнатной квартиры.
Не печальтесь – есть решения вопроса и для Вас!
Планировка улучшенки, на мой взгляд достаточно удачна. Оно следует из самого его названия. Эта квартира, в принципе, способна удовлетворить спрос рядового среднестатистического обывателя, коим являюсь к примеру я.
Судите сами – при входе мы попадаем в достаточно просторный коридор. Здесь нет ни одной смежной комнаты. Сами комнаты достаточно просторны. Санузел, естественно, раздельный. Но главная фишка этой квартиры – это кухня. Достаточно просторная 8 метровая кухня – мечта домохозяек всех предшествующих советских поколений. Нельзя оставить без внимания удобную кладовую а так же достаточно просторную лоджию, где кроме пары лыж способен уместиться еще и велосипед! Кстати в некоторых таких квартирах имеется аж целых 2 лоджии и балкон в зале (не понятно почему не на кухне).
Но вернемся к ремонту и перепланировке нашей 3-комнатной квартиры. Давайте думать, что бы Вы хотели изменить и чем для этого способны пожертвовать. Две спальни остаются в неизменном виде, какие либо перепланировки здесь исключены. Взгляните на план и вам все станет ясно – вокруг вас одни соседи – сносить переносить нечего и некуда.
Вариант 1. Перепланировки 3-комнатной квартиры. Убираем кладовую, удлиняем кухню.
Помимо удобной и просторной кладовой пожертвовать придется еще и кухонной антресолью. Если Вы считаете, что весь хлам надо хранить в гараже, а для нужных вещей найдется место и на балконе, то этот вариант именно для Вас!
Планировка улучшенки, на мой взгляд достаточно удачна. Оно следует из самого его названия. Эта квартира, в принципе, способна удовлетворить спрос рядового среднестатистического обывателя, коим являюсь к примеру я.
Судите сами – при входе мы попадаем в достаточно просторный коридор. Здесь нет ни одной смежной комнаты. Сами комнаты достаточно просторны. Санузел, естественно, раздельный. Но главная фишка этой квартиры – это кухня. Достаточно просторная 8 метровая кухня – мечта домохозяек всех предшествующих советских поколений. Нельзя оставить без внимания удобную кладовую а так же достаточно просторную лоджию, где кроме пары лыж способен уместиться еще и велосипед! Кстати в некоторых таких квартирах имеется аж целых 2 лоджии и балкон в зале (не понятно почему не на кухне).
Но вернемся к ремонту и перепланировке нашей 3-комнатной квартиры. Давайте думать, что бы Вы хотели изменить и чем для этого способны пожертвовать. Две спальни остаются в неизменном виде, какие либо перепланировки здесь исключены. Взгляните на план и вам все станет ясно – вокруг вас одни соседи – сносить переносить нечего и некуда.
Вариант 1. Перепланировки 3-комнатной квартиры. Убираем кладовую, удлиняем кухню.
Помимо удобной и просторной кладовой пожертвовать придется еще и кухонной антресолью. Если Вы считаете, что весь хлам надо хранить в гараже, а для нужных вещей найдется место и на балконе, то этот вариант именно для Вас!
Переделок совсем не много. Удаляется фрагмент перегородки кладовой, (место кладовой обведено на чертеже) переносится дверь кухни и чудо – вашему взору открывается не 8.5 а уже почти 11 метровая танцплощадка. В голове сразу же возникает мысль о наконец то настоящем полноценном кухонном гарнитуре. Но не спешите – советую все же закончить ремонт квартиры, раз уж Вы его начали.
Первая проблема, которая возникнет при перепланировке 3-комнатной квартиры– стояки водопровода на самом видном месте. В углу кладовой Вы наверняка их даже не замечали. Думаю не стоит фантазировать на тему убирания этих труб в стены, просто зашьем их в короб. На чертеже это отмечено стрелочкой. Причина тут в канализационном стояке из 50 чугунной трубы. Короб получился не слишком громоздким. Заодно он несет звукоизолирующие функции.
Дальнейшие мысли по отделке – это полет Вашего вкуса и фантазии.
Вариант 2. Перепланировка 3-комнатной квартиры. Объединяем кухню и гостиную.
Такой стиль помещения часто называют «студией». Хорошо подходит для одиноких людей и семейных пар без детей. Впрочем, не берусь классифицировать.
Ну что же, начнем ломать! Что ломаем? Да практически все! Точнее все некапитальные перегородки. Это кладовая и зал. Как правило перегородки сложены из гипсолитовых блоков 40*80 и достаточно хорошо поддаются ударам тяжелого молотка. Приготовьтесь к изнурительному тасканию мешков с камнями, скандалам с соседями по подъезду по поводу шума, вечно занятого лифта, мусора в подъезде, да и вообще вы негодяй. Почему? Да только потому, что у вас ремонт квартиры. Место во дворе следует заранее согласовать с местным ЖЭУ. Морально настройтесь на погрузку и вывоз 2 камазов мусора…. Да, веселенькая намечается работенка.
Следует оговориться, что такое решение ремонта приемлемо лишь при глобальной реконструкции вашей квартиры затрагивающей все помещения и коммуникации.
При демонтаже перегородок следует учесть тот факт, что в верхней части стены проложена проводка освещения, вмонтированы распредкоробки, розетки и выключатели. Поэтому ломать перегородку следует осторожно, малыми кусками, постепенно освобождая провода. Не забывайте о соседях снизу. Кусок блока, упавший с 2 метровой высоты, способен нанести ущерб квартире ваших соседей. Проводку следует сохранить без повреждений, так как она до конца ремонта квартиры будет служить в качестве рабочей. Лишним будет пояснение, что план электропроводки изменится кординальным образом. Проводку меняем полностью.
После сноса всех перегородок разметим новые. Поскольку гостиная и кухня у нас запланированы одним помещением, следует во первых, отделить зону кухни от прихожей (поскольку ни коридора ни прихожей у нас не осталось), во вторых, немного отделить от гостиной и загородить зону раковины и плиты. Как это будет выглядеть, видно из плана. Такое решение даст ряд преимуществ – у вас теперь получилась более менее закрытая от сквозного просмотра прихожая, кухня не мозолит глаза в гостиной как на витрине, да и возможностей для проектирования кухонного гарнитура появилось больше.
Теперь дошла очередь до самой главной фишки в ремонте и перепланировки 3-комнатной квартиры . Вам несказанно повезло – сами посмотрите на план. Как выглядят ваши санузлы. Они находятся в своеобразном «тамбуре» между дверями спален.
Теперь о замысле – мысль заключается в том, чтобы объединить санузлы и вынести их вперед в тамбур, вплотную к дверным коробкам. Какие минусы такого решения – придется пожертвовать отдельной комнатой туалета. Что дают нам такие жертвы – целый ряд преимуществ. Посмотрите на план новой ванной комнаты с расположением оборудования. Что тут нового? Все новое. Все стоит по другому. Как то изменилась функциональность помещения. А теперь сюрприз – у вас появилось новое оборудование. Например это будет биде – очень удобная штука, рекомендую(можете поставить стиральную машинку). Биде и унитаз мы вознесли на подиум который образовался по техническим причинам вследствие переноса труб полотенцесушителя. В образовавшемся свободном пространстве между ванной и унитазом легко помещается широкий мойдодыр шириной до 1 метра. И вообще ваша новая ванная комната достаточно просторна, не набита оборудованием. Вид вполне современный. Вариант такого санузла можно посмотреть здесь: “Совмещение ванной комнаты и туалета”.
Читать еще: КЛАДР Онлайн, Альта-Софт
Взгляните на план. Он достаточно оригинален. Не берусь судить насколько квартира стала лучше чем оригинал. Попав в такую квартиру, я не сразу осознал, что нахожусь именно в улучшенке, настолько был непривычен ее вид. Достаточно просторная гостинная, закрытая и проходная одновременно, уютная кухня-закуток за аркой. Вот только в прихожей откровенно тесновато. Но что поделаешь, за все надо расплачиваться.
Варианты и примеры перепланировок 3-х комнатных квартир
Понравилась статья? Следите за новыми идеями из мира строительства, дизайна, полезных советов в нашем канале. Подписывайтесь на нас в Яндекс.Дзене. Подписаться.
При покупке жилого помещения часто оказывается, что новых хозяев устраивает в нем далеко не все – количество комнат, их размер, расположение входов. Потому жильцы сразу же делают ремонт. Современная перепланировка трехкомнатной квартиры – задача нелегкая и недешевая, так как площадь оформляемого пространства составляет 60-120 мм. кв.

Трехкомнатная квартира – прекрасный вариант для реализации самых разнообразных дизайнерских задумок и создания функционального и комфортного интерьера.
Особенности перепланировок трехкомнатных квартир
Кроме самих комнат, в квартире имеется санузел (чаще всего раздельный), сравнительно просторная кухня, прихожая, балкон или лоджия, кладовка. Стены, расположенные между комнатами, чаще всего капитальные, несущие, потому сносить их полностью запрещается, а на частичный демонтаж требуется разрешение.

В первую очередь планировка на прямую зависит от количества проживающих в квартире человек и их запросов.
Самое главное при «перестройке» небольшой «трешки» – можно аккуратно уместить все необходимое. Минимальная площадь такой типовой квартиры – около 50 кв. м., максимальная – больше, чем 90 кв. м. При наличии проходных комнат, их обычно стараются сделать отдельными. Когда кухня тесновата, ее присоединяют к гостиной, объединяют с лоджией.

Перед тем как приступить к перепланировке, важно провести тщательное ознакомление с планом жилого пространства.
Как создать комфортное пространство в трехкомнатной квартире
Обустройство квартирного пространства зависит от того, сколько людей будет в нем проживать, их пола, возраста. Для детей обычно делается несколько маленьких комнат, для взрослых пространство часто зонируют мебелью. Главное для любой квартиры – создать хотя бы небольшое личное пространство для каждого члена семьи, вне зависимости от его возраста.

Выбирая дизайн для трехкомнатного пространства, для начала руководствуются количеством проживающих человек.
Перепланировка современной 3-х комнатной квартиры начинается с составления проекта. Готовый план необходимо утвердить в соответствующей организации. Дизайн жилища выбирается самостоятельно. Если в семье не более двух человек, имеет смысл перестроить квартиру в «студию» – тогда подбирают планировку с минимальным количеством внутренних капитальных стен.

По выбору стилевого решения для трешки не существует определенных требований.
Трехкомнатные различных серий
Все дома, построенные по определенным типовым проектам, объединяются в серии. Каждая из последних предполагает постройки с различным количеством этажей, площадью квартир, разные годы постройки. Такие дома чаще всего выполняются панельными, что позволяет выставлять минимальную стоимость за квадратный метр, реже – блочными, кирпичными.

Некоторые стремятся декорировать жилье в одинаковой стилистике, а другие предпочитают абсолютно разное исполнение.
Удачная перепланировка трехкомнатной квартиры серии и-209а, предполагает частичную либо полную замену многих коммуникаций. Особенность данной планировки «брежневки» – полностью изолированные комнаты. В зависимости от серии все существующие трехкомнатные отличаются.

Часто применяют стеллажи, которые представляют собой полноценное интерьерное дополнение.
Данная серия начала строиться в 1970-х. Практически все стены здесь – несущие, что сильно ограничивает возможности для перепланировки. Этажей в домах – 2-17, высота потолков – 2,64, в каждой квартире, с числом комнат больше двух имеется балкон. Площадь «трешки» – 73-83 м. кв., жилая – 44-49. В кухне и санузлах имеется вытяжка.

Планировка квартир серии домов П-3.
Серия П-44 т
Площадь таких пространств от 73 до 81 м. кв., из которых жилая – 44-54 кв. м. Они расположены в панельных домах, где имеются грузопассажирские и пассажирские лифты, чердаки, технические помещения. Вентиляция квартир – естественная, осуществляется через специальные блоки в туалете, ванной. Высота потолка – 2,74 м.

Планировка квартир серии домов П-44 т.
Серия ii-68
Это серия панельно-блочных многоквартирных построек, особенность которых – ступенчатое расположение балконов. Обычно так строились одноподъездные 16-этажки, но есть и другие варианты. В каждой квартире имеется лоджия, которую часто самостоятельно присоединяют к основному помещению. Площадь «трешки» здесь – 65 м. кв., жилого пространства – 46 м. кв.

Планировка квартир серии домов ii-68.
Данная панельная серия также известна под названием 111-83, строилась, начиная с 1970-х. Этажей здесь 5-10, само строение отличается от других внешним видом фасадов, способом ограждения лоджий. Высота потолка – 2,7 м., санузлы во всех квартирах раздельные, в каждой имеется кладовка, лоджии и балконы – застекленные. Общая площадь – от 50 кв. м., жилая – от 39 кв. м.

Планировка квартир 83-й серии домов.
Такие панельные «брежневки» считаются одними из самых качественных – здесь хорошая звукоизоляция, высокий уровень теплосбережения, но самая простая внутренняя отделка. В 1970-х строились только пятиэтажки, в 2000-х – 17-этажки. В каждой квартире тут имеются балконы и лоджии. Площадь «трешки» – 79-92 кв. м., жилая – 60-70 м. кв., кухня – 12-14 кв. м., высота потолков – 2,7 м.

Планировка квартир 121-й серии домов.
Эти квартиры также относятся к «брежневкам» и отличаются самой маленькой площадью – размеры трехкомнатной здесь всего 54-58 кв. м., кухни – 6-7 м. кв. В многокомнатных имеются кладовки, встроенные шкафы, паркетные полы. Само здание отличается повышенной прочностью, долговечностью. Основные недостатки подобного жилья – наличие проходных комнат.

Планировка квартир 504-й серии домов.
Варианты типовых перепланировок «трешек»
Способов перепланировки в 3-х комнатной квартире «сталинке» существует несколько:
- «превращение» из «трешки» в четырехкомнатную;
- с присоединением лоджии, балкона;
- объединение зала и кухни;
- с переносом коммуникаций из санузла;
- присоединение прихожей к гостиной, спальне.
В отличие от «хрущевок» и «брежневок», «сталинки» более просторные, имеют высокие потолки, их планировка удобнее.

Важно сформировать по-настоящему красивый, стильный и функциональный дизайн, включающий в себя все необходимые интерьерные предметы.
Из трехкомнатной в четырехкомнатную
Этот вариант предполагает разделение одного из помещений на два – частично либо полностью. В таких случаях перегородкой служит лист ДСП или гипсокартона. Иногда дополнительной крошечной комнаткой без окон становится кладовка – ее используют под мастерскую или рабочий кабинет.

Грамотное оформление такой квартиры придаст интерьеру особую неповторимость.
С затрагиванием кухни
Кухню проще всего присоединить к гостиной. Полученное пространство выйдет весьма обширным, но газовую плиту придется заменить на электрическую, в целях соблюдения норм пожарной безопасности.

В просторной кухне-гостиной возможна реализация огромного количества творческих, декоративных идей.
С изменением балкона, лоджии
Лоджию, пространство балкона присоединяют к жилой комнате, путем удаления оконно-дверного блока. Балкон предварительно придется утеплить, застеклить. Систему отопления здесь также нужно продумать.

Отличный пример – устройство теплого пола.
С затрагиванием «мокрых» зон
К зонам с повышенной влажностью относятся ванная, туалет, рабочая зона кухни. При необходимости, если в данном пространстве проживает больше четырех человек, обустраивается дополнительный санузел.

В подобном санузле в основном выделяют зону для умывания и гигиенических процедур, место для отдыха и отдельный участок для хозяйственных принадлежностей.
Другие возможные виды перепланировок
В одной из комнат либо части прихожей, оборудуется гардеробная. Ее минимальная площадь – четыре метра квадратных, так как меньшее пространство крайне неудобно. Иногда гардеробом становится слегка расширенная кладовка, расположенная на стыке двух комнат.

Для обустройства гардеробной, чаще всего предпочитают различные ниши или кладовки с площадью 3-4 квадрата.
Совет: при желании, кладовку легко присоединить к одной из комнаток.
Особенности перепланировки трехкомнатных в панельном доме
При перепланировке панельной «трешки» важно учитывать этажность здания. Расположение комнат сильно отличается в зависимости от этого. Панельные дома отличаются от кирпичных тем, что составлены их серых квадратных плит, которые видны снаружи. Здесь обычно плохая звукоизоляция, а без специальной отделки – высокие теплопотери.

Перепланировка позволяет добиться стильного интерьера, отличающегося особой выразительностью и индивидуальностью.
К панельным пятиэтажкам относятся постройки серии 1-335, 1-439А, 1-439Я, 1-466, 1-467, 1-510, 1-515/5, 1605-АМ/5, 1Р-303-2, II-18-01/08Б, II-18-01/09Б, К-7, П-46М и некоторые другие. В основном это «хрущевские» дома – квартирки в них тесные, с маленькой кухней и прихожей, проходными комнатами. Но более современные серии немного просторнее, возможностей для перепланировки в них больше.

Планировка квартир серии домов 1-515/5.
Девятиэтажные панельки – это серии I-515/9Ш, В-2000, МПСМ, МЭС-84, П-3М, ПД-1, ПД-3, П-46М и прочие. Данные постройки немного отличаются от хрущевских площадью, высотой потолков, общим уровнем комфорта, хотя имеются проблемы со звукоизоляцией. Подъезды и дворы девятиэтажек также просторные.

Планировка квартир серии домов П-46М.
Панельные 12-этажные дома – это такие серии, как П-111М, МЭС-84, II-57, В-2000, ИП-46С, КОПЭ, МПСМ, П-111М, П-30, П-44Т, П-55М и другие. Подобные строения возводятся с 1963 года, их ширина – 12-16 метров, что позволяет сделать квартиры достаточно просторными.

Планировка квартир серии домов П-55М.
Особенности перепланировки трехкомнатной квартиры-распашонки
Стандартная квартира в народе называемая «распашонкой» – это жилище с одной проходной и двумя обособленными комнатами, а также кладовкой. Наиболее часто здесь полностью отделяют перегородкой одну из комнат, создавая дополнительный вход из кухни или прихожей. Не менее часто к кухне, гостиной, присоединяют балкон, кладовку – дизайн пространства от этого только выигрывает.

Перепланировка трехкомнатной квартиры распашонки.
Заключение
Грамотная перепланировка 3-х комнатной квартиры – идея весьма трудозатратная. Все действия, производимые в ней, должны быть законными, чтобы дом не разрушился. Для проведения такого ремонта желательно нанять бригаду специалистов, которые не только выполнят все в лучшем виде, отлично переделав и оформив все три комнатки, но и уберут за собой мусор.
ВИДЕО: Перепланировка трехкомнатной квартиры п-44.
Перепланировка: Возможности «трешки» в доме типовой серии 1605-АМ
Как преобразовать типовую квартиру с проходной комнатой в качественное жилье и найти место для второй ванной комнаты

Перепланировки в домах этой серии — одни из самых опасных для здоровья. Дело в том, что проектом в квартире предусмотрены две вентиляционные шахты: одна в уборной, другая в стене между кухней примыкающей комнатой. И если к вентиляции в санузлах граждане относились с уважением, то выступ на пути в кухню многим «мешал жить». Конечно, ведь на его месте можно было спокойно поставить холодильник!
Ради этих самых холодильников была снесена не одна шахта вентиляции. Нарушенный воздухообмен не просто причинял неудобства соседям по стояку: он провоцировал появление грибка в стенах и перекрытиях дома. Сейчас идет процесс активного восстановления всех вентиляционных шахт и коробов, поскольку уже каждый осознал, что грибок и плесень, въевшиеся в стены, ослабляют имунитет проживающих: провоцируют респираторные заболевания у взрослых и аллергии-астмы у детей. Именно поэтому важно не просто сделать перепланировку в доме серии 1605 АМ, а сделать ее без нарушения санитарных норм и угрозы здоровью.
Техническое особенности квартиры
Рассмотрим возможности перепланировки в доме серии 1605 АМ на примере трехкомнатной квартиры. Помимо кухни, ванной комнаты, уборной, коридора и лоджии в квартире три жилые комнаты, причем одна из них проходная. Площадь квартиры 64 кв.м, из них жилая составляет 46 кв.м.
Важно: Практически все стены в квартире несут нагрузку перекрытий и сносу не подлежат. Но в стенах можно организовать проем, предварительно укрепив их.
Читать еще: E – Кадастровая стоимость недвижимости бесплатно, Реестры России
Все комнаты становятся изолированными, а в отрезанном «торце» коридора и некогда проходной комнаты появляется небольшая гардеробная.
Коридор в кухню сужается — его ширина составляет 900 мм: дело в том, что на глубину вентиляционного короба вдоль всей стены по соседству с ним встроен шкаф.
Гостиная организована в ближайшей комнате к кухне, что помогает сохранить спальни в «уединении».
Для кухни предложена угловая планировка: это позволит разместить и духовой шкаф, и посудомоечную машину. Кроме того угловая столешница увеличивает площадь для приготовления еды.
Совет: В маленькой кухне постарайтесь организовать удобную зону для приготовления еды. Если площадь позволяет применить схему расстановки кухонного оборудования буквой «П», то это идеальный вариант. Главное, чтобы «проход» был не уже 1500 мм.
Вариант 2. Квартира с двумя санузлами для семьи с двумя детьми
Организуются отдельные спальни для родителей и детей. Между спальней родителей и детской — «буферная» зона гардеробной: она же является дополнительной звукоизоляцией.
Обособленные санузлы добавляют еще больше комфорта при проживании: вторая уборная с раковиной позволит избежать бытовых конфликтов.
К детской комнате примыкает лоджия, которую мы добавляем к площади квартиры. Добавление лоджии к комнате в этом доме разрешено, допустимо также демонтировать нижний оконный блок для организации прохода.
Совет: При выборе дизайна для детской постарайтесь отойти от стереотипа «солнышко, облака и смешные животные». Ребенок — полноценная личность, которая имеет право на свои вкусовые предпочтения. Идеально, когда интерьер детской сдержан и не перегружен деталями. «Солнышко и животные» могут появиться, но лучше, если это будут постеры или игрушки.
Не бойтесь использовать для оформления детской белый цвет: маркость белых стен приучит ребенка к порядку и чистоте быстрее и лучше, чем строгая няня.
В результате такой перепланировки квартире организован комфортный уровень проживания: кухня-гостиная становится смысловым центром квартиры, где собирается вся семья и принимают гостей. Дома этой серии не газифицированы, что позволяет объединить кухню с жилой комнатой. А за счет объединения расширяется площадь для кухонного оборудования: можно установить обеденный стол на 6 персон и создать уютный уголок возле дивана и круглого пуфа.
Важно: Экспериментальные серии этих домов отличаются размещением водяных коммуникаций: в некоторых домах в стене между кухней и комнатой проходят трубы, что ограничивает допустимую ширину организации проема.
Вариант 3. Максимум комфорта
Квартира имеет четкое деление на приватную и гостевую части, при этом в гостевой расположена кухня-гостиная и гигантская ванная комната. В приватной части — две автономные спальни, гардеробная и ванная с душем.
За счет сокращения длины коридора и перепланировки комнаты, примыкающей к кухне, со стороны прихожей удается организовать скрытые шкафы для хранения обуви и верхней одежды. Они же служат границей второй, приватной ванной комнаты в тамбуре между спальнями.
Расположение гардеробной не отличается от предыдущего решения — она расположена в буферной зоне между родительской и детской комнатами.
Важно: Вторая ванная комната размещена в пределах коридора и не занимает жилую площадь: при соблюдении этого условия на подобное переустройство квартиры можно получить разрешение.
Для реализации подобного решения традиционным способом пришлось бы организовать необходимый уклон (4 градуса) для трубы канализации. Несложно подсчитать, что значительная отдаленность магистрали канализации от второй ванной комнаты потребовала бы поднятия уровня пола на полметра.
Действуйте проще: установите специальный насос, который будет автоматически очищать трубу канализации. В этом случае в подъеме нет необходимости.
Совет: Произведите полную гидроизоляцию квартиры — это важное условие подобной реконструкции.
Достоинства предложенного планировочного решения в том, что получается использовать все скрытые резервы площади и не нарушить строительный регламент. В квартире достаточно мест для сна, работы и отдыха, как и мест для хранения.
Кроме того подобная планировка идеальна, если вы любите принимать друзей: ваш гость может жить в квартире, не создавая неудобств, так как приватная часть изолирована.
Как сделать 3 комнатную квартиру ещё более комфортной

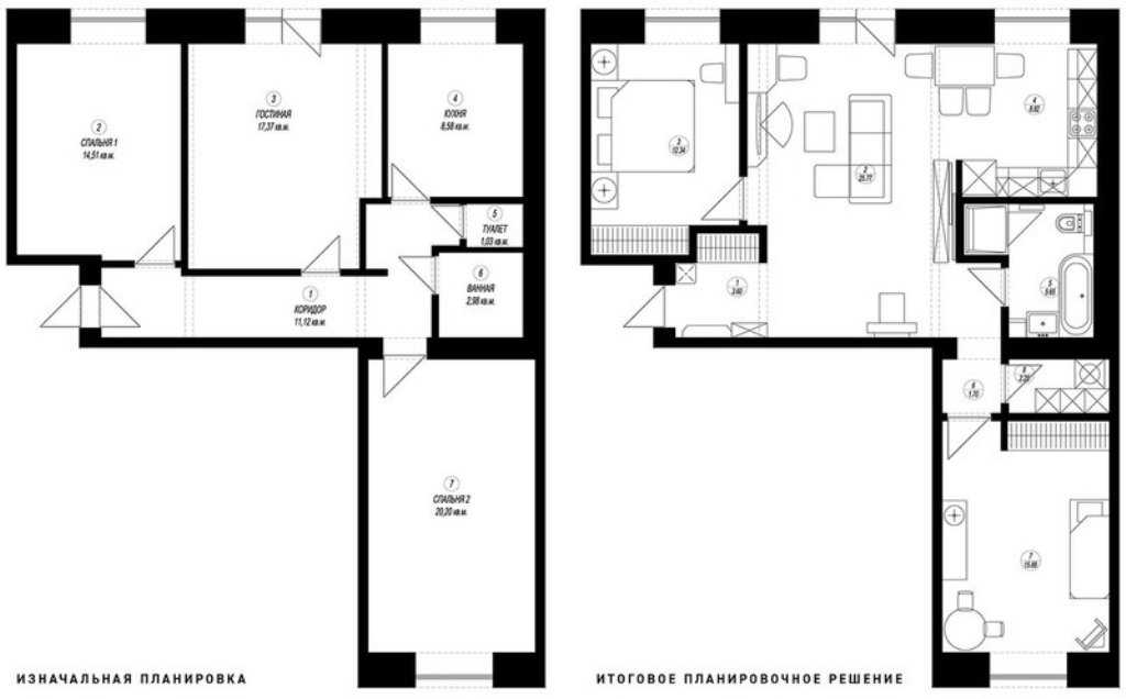
Немногие наши соотечественники сегодня могут похвастаться тем, что площадь жилья полностью удовлетворяет их. Даже людям, которым посчастливилось купить или получить в наследство просторные трёхкомнатные квартиры московской планировки, нередко задумываются о том, что многое можно было бы оптимизировать. Например, кухня может быть слишком маленькой, коридор – слишком длинным и тёмным, и вообще не помешало бы заполучить ещё одно помещение, которое можно было бы выделить под кабинет или дополнительную детскую комнату.
Функциональная планировка 3-х комнатной квартиры
Что ж, можно просто сидеть, сожалеть и иногда жаловаться друзьям и знакомым, что квартира не удовлетворяет вас по ряду причин. А можно просто попытаться что-то сделать. И в таком случае перепланировка трехкомнатной квартиры является единственным способом превратить стандартное помещение в жилье вашей мечты.
С чего начать
Разумеется, прежде чем начинать чертить чертежи самостоятельно или прибегать к помощи специалистов, стоит определиться с тем, что же вы хотите получить в результате.
Расширить кухню? Изменить внешний вид коридора? Получить дополнительную спальню, которую можно было бы выделить подрастающему ребёнку или пожилым родителям, решившим переехать к вам? Тщательно продумайте, а нужно ли вам вообще начинать ремонт в своей квартире? Ведь начав, бросить дело на полпути уже не получится. И работа может растянуться на многие недели и даже месяцы; это будет действительно тяжелое испытание и для ваших нервов, и для семейного бюджета.

Когда решение окончательно принято, можно начинать составлять план. Конечно, если вы можете себе это позволить, то лучше доверить работу специалистам. Ведь зачастую перепланировка квартиры сопровождается переносом или даже сносом стен.
первоначальный план 3-комнатной квартиры
вариант перепланировки трехкомнатной квартиры со сносом стен коридора
Только опытные специалисты смогут учесть все нюансы, гарантируя, что в результате вы получите совершенно безопасное и уютное жилье. Они учтут, какие стены в квартире являются несущими (а значит, с ними стоит работать только в крайнем случае), а какие – самонесущие. Учтут и материал, из которого построен дом.
Разумеется, у них есть планы различных домов со всеми характеристиками: толщиной стен, постоянными нагрузками, несущими конструкциями и так далее. Поэтому они смогут выполнить всю работу максимально качественно, независимо от того, в каком доме находится ваша квартира – 83 серии или 137 серии.
планировка трехкомнатной квартиры в домах 137 серии
Перенос или снос капитальных стен – очень важный процесс. И выполнять его можно только после получения разрешения в соответствующих органах.

Эту работу точно лучше доверить специалистам. Да, придется заплатить за их помощь. Зато в результате нужные документы будут собраны за считанные дни. В противном случае процесс их сбора вполне может затянуться на несколько недель или даже месяцев. Служащие контор будут отправлять вас из одного кабинета в другой, требовать всё новые и новые справки и разрешения. Тем, кто проходил эту процедуру, она вспоминается только в страшных снах.
Вы можете сами выбрать подходящий для вас проект:
- Стандартный проект. Он имеет относительно невысокую цену. Но не всегда может полностью удовлетворить требования владельца квартиры, так как был разработан по желанию другого заказчика.
- Уникальный проект. Обойдется вам довольно дорого, зато здесь вы будете вольны в своих фантазиях. Ваша квартира может быть преображена до полной неузнаваемости. Стандартная 3-хкомнатная квартира в панельной пятиэтажке может превратиться в роскошные апартаменты, отвечающие всем вашим требованиям.
Какой вариант выбрать? Решайте сами!
Как правильно снести стену в квартире.
Начинаем с кухни
Итак, схемы начерчены и планы готовы. Можно приступать к работе. Наиболее часто в трёхкомнатных квартирах подвергается перепланировке помещение, отведённое под кухню. Действительно, крохотная кухня площадью в 5-6 квадратных метров просто не может удовлетворить требования многих людей. А ведь именно здесь приходится старательно работать, чтобы приготовить вкусный ужин для всей семьи. А во время ужина, особенно если за столом собирается 5-6 человек, в кухне становится особенно тесно. Значит, нужно расширить помещение.
Если выход на балкон находится на кухне, как это обычно бывает в домах 121 серии, можете считать, что вам повезло. Именно за счет балкона можно значительно расширить кухню.
Да, придется качественно остеклить его, утеплить, провести отопление и демонтировать дверь с оконной рамой, соединяя балкон с кухней.
Кроме того, теперь пользоваться балконом будет не так удобно, ведь дотягиваться до дальних веревок, высовываясь из окна, довольно затруднительно. Однако дополнительные 2-3 квадратных метра к площади кухни (в панельном доме стандартная площадь кухни составляет около 6-7 квадратных метров) полностью окупают любые затраты и легкий дискомфорт.

Теперь вы получили довольно просторное помещение. Плиту, холодильник и шкафы можно переместить на балкон: там будет основная рабочая зона. А вот в самой кухне можно установить большой стол или даже кухонный мягкий уголок, ведь места для этого теперь будет вполне достаточно.
Кстати, если между кухней и балконом был широкий, массивный подоконник из бетона, какой часто встречается в домах 75 серии, не всегда имеет смысл демонтировать его. Демонтаж связан с большими проблемами: на эту непростую работу может уйти целый день.
стандартная планировка квартиры в домах 75 серии
Вывезти строительный мусор и аккуратно выровнять и замаскировать стены – дополнительные хлопоты. Поэтому многие люди принимают весьма удачное решение: используют подоконник в качестве кухонного стола. Можно установить на него небольшую столешницу и соответственно декорировать его, а можно просто обклеить моющимися обоями или клеёнкой, чтобы новый столик гармонично смотрелся в интерьере помещения.
Ещё один шаг – работа со стеной, разделяющей кухню с гостиной (и иногда коридором).
Совмещенная кухня с гостиной
Сносить эту стенку имеет смысл только если вам очень хочется увеличить полезное пространство, которого критически не хватает. В противном случае можно просто пробить в ней проем и изящно его декорировать. Тогда и кухня, и гостиная значительно увеличиваются зрительно, что наверняка придется по вкусу любому владельцу квартиры.
Перепланировка 3х комнатной квартиры в панельном доме
Место расположения данной трехкомнатной квартиры – 9-этажный панельным дом серии II-49Д, построенный в 1967 году. Ее собственник пожелал расширить зону санузла и перестроить жилую территорию квартиры.
Стоит отметить, что большая часть стен в квартире панельного дома серии II-49Д являются несущими конструкциями, поэтому возможностей для проведения перепланировки в таком случае не так уж и много.
Тем не менее намеченные к перепланировке 3х комнатной квартиры в панельном доме строительно-демонтажные мероприятия удалось реализовать в полной мере. Но прежде предстояло разработать и согласовать проектную документацию с Мосжилинспекцией.
Разрешение на перепланировку 3х комнатной квартиры в панельном доме:


В процессе перепланировки 3х комнатной квартиры в панельном доме предполагалось затрагивание несущей стены. Поэтому для согласования работ понадобилось техническое заключение о возможности проведения переустройства квартиры от разработчика многоэтажек серии II-49Д – от Московского научно-исследовательского и проектного института типологии, экспериментального проектирования (АО МНИИТЭП).
Акт о завершенной перепланировке:


Чтобы определить, возможна перепланировка или нет, проводится инженерное обследование объекта недвижимости, в процессе которого изучается состояние стен, перекрытий и перегородок. И такое обследование было проведено сотрудниками АО МНИИТЭП.
По его результатам было составлено техническое заключение, которое отобразило текущее состояние квартиры и ее конструктивных элементов. Выводы, представленные в техническом заключении, позволили проводить в панельном доме перепланировку 3х комнатной квартиры.
План квартиры после перепланировки:


Для экономии времени и денежных средств проект предстоящей перепланировки собственник жилья заказал не в АО МНИИТЭП, а в нашей компании. Готовый проект, техническое заключение, заявление на перепланировку, план квартиры, составленный БТИ, и свидетельство о праве собственности единым комплектом передали в Мосжилинспекцию через многофункциональный центр госуслуг.
В установленный срок документы рассмотрели и утвердили. Хозяин квартиры получил официальное разрешение на перепланировку и приступил к ремонтным работам.
Туалет (5) и ванную (6) совместили и расширили на часть площади коридора (7), полностью перекрыв проход в кухню (4). При этом гидроизолировали пол и заменили ванну.
Читать еще: О лишении отцовства: как лишить бывшего мужа в одностороннем порядке, основания
Наименьшую по площади комнату (3) расширили на коридор. И если раньше она была изолированной, то теперь стала проходной.
Из этой комнаты в несущей стене прорезали проем для прохода в кухонное помещение. Мойку на кухне переставили.
Проект перепланировки 3х комнатной квартиры в панельном доме:




Площадь комнаты (2), до перепланировки 3х комнатной квартиры в панельном доме значившейся проходной, уменьшили в пользу устройства гардеробной (6) и увеличения пространства другого жилого помещения (комнаты 3, которую также расширили на часть площади коридора).
После завершения перепланировки 3х комнатной квартиры в панельном доме жилинспекция приняла работы, а БТИ, обмерив помещения, внесло новую планировку в документы техучета.
Варианты перепланировки 3-х комнатной квартиры серии П-3, П-44. Передел трехкомнатной в 2х- и четырехкомнатную. Примеры проектов хрущевки в кирпичном и панельном домах

Для расширения своего пространства дизайнеры прибегают к новым тенденциям увеличения жилья.
Они могут посоветовать подобрать что-то из мебели, снести стену, которая не является несущей.
Также можно обставить пространство, чтобы все бытовые предметы поместились, и в то же время не нагромождались.
Множество интересных дизайнерских решений можно сделать только после того, как специалист увидит конкретную квартиру, возможно даже планировку, нарисованную на бумаге со всеми прописанными в ней параметрами.
Дорогие читатели! Наши статьи рассказывают о типовых способах решения юридических вопросов, но каждый случай носит уникальный характер.
Если вы хотите узнать, как решить именно Вашу проблему — обращайтесь в форму онлайн-консультанта справа или звоните по телефону +7 (499) 938-51-36 . Это быстро и бесплатно !
Что можно сделать с 3х комнатной квартирой?
Каждую квартиру при необходимости можно перепланировать. В одних вариантах следует создать минимальные изменения, в других – максимальные.
Многие люди решаются расширять свое пространство только за счет лоджии.
Она обычно не присоединена к несущим стенам.
Также, ее легче всего присоединить к жилому пространству, творчески оформить, утеплить и сделать все для того, чтобы комфортно проживать.
Дополнительно, в каждой трехкомнатной квартире можно сделать отдельную гардеробную комнату, визуально облагородить те места, которые в квартире являются обычными или так называемыми «стандартными», к примеру, длинные узкие коридоры.
Решение разрешительного вопроса
Вопрос каждой перепланировки раскрывает Жилищный Кодекс Российской Федерации, в котором предусмотрены все регулирующие данный процесс статьи. В нем вы найдете следующие ответы:
- о законности перепланировки квартир;
- о правилах и порядках переделывания жилых помещений;
- о том, чем чревато самовольное проведение подобных работ;
- многие другие пункты.
Дополнительно, вам следует обратиться и к другим нормативно-правовым актам, к примеру, закон, в котором предусмотрен вопрос о том, какой порядок оформления и выдачи документов для проведения ремонтных работ типа перепланирования, реконструкции, переоборудования и т.п.
Официальный разрешительный документ для того, чтобы выполнить все выше перечисленные работы, каждый сможет получить в случае полной подготовки к такому процессу:

- Должна быть представлена графическая подробная схема помещения.
- Разработан архитектурный проект со всеми запланированными изменениями в жилищном пространстве.
Далее, процесс не заставит себя ждать и вам придется пройтись в несколько государственных инстанций: БТИ, управление архитектуры, МЧС, жилищную службу, и другие организации, занимающиеся эксплуатирующими моментами, муниципальные органы власти.
Чтобы перепланировка 3 х квартиры осуществилась владелец квартиры, желающий изменить жилое пространство, должен собрать следующую документацию:
- технический паспорт жилья, который должен быть надлежаще оформлен в органах БТИ. Сюда входят и различного рода справки, и планы этажей в многоэтажке и т.п.;
- уже готовый проект, где нарисована перепланировка 3х комнатной квартиры, которая подготовлена лицензированными проектными организациями или одной из них;
- заключение технического плана о том, что проект перепланировки жилья реально осуществить без негативных происшествий;
- заключение из пожарной службы о том, что вы можете воплотить перепланировку;
- заключение СЭС;
- согласование специальным архитектурным управлением вместе с автором проекта об перепланировке;
- разрешение от каждого из проживающих владельцев жилья;

Не забывайте и о том, что незаконная перепланировка квартиры влечет за собой ответственность.
В жизни случаются многие ситуации, к примеру, когда необходимо позаботиться о жилье для своих детей. Они женятся или выходят замуж, а жить им негде.
Все мы знаем, сколько стоит квартира в новостройке и что обычным гражданам, закончившим институт или университет, еще потребуется долгое время для того, чтобы собрать необходимые финансовые средства.
Примеры перепланировок трехкомнатных квартир:
В 4х комнатную
Перепланировка трехкомнатной квартиры в четырехкомнатную позволит увеличит жилое пространство.
Дизайнер для начала выбирает одну комнату в трешке, которую можно разделить на две.
Поделить на зоны новую четырехкомнатную комнату – это наилучший и самый быстрый способ справится с такой проблемой.
При этом придется воплотить в интерьере современный дизайн (трехкомнатная хрущевка перепланировка в 4х комнатную) – стиль «Модерн», «Фьюжн», «Минимализм» или «Лофт». Они идеально подойдут для такого жилища, так как именно в них сочетаются не только красота и гармония, но и минимум расставленных бытовых и других предметов. А это при «сжатии» жилищного пространства просто необходимо.
Итак, сначала нужно изменить конфигурацию выбранных стен, возможно, даже сократить кухонное помещение или коридор, находящийся в центре квартиры.
Так, в каждой из комнат будет свое окно (хоть и одно), и никто никому не будет мешать в передвижении.
В 2х комнатную
Перепланировка трехкомнатной квартиры в двухкомнатную в данном случае намного проще. Здесь, рабочие должны найти стены, которые не являются несущими, и разбить их.
Причем, при расширении у вас появляется больше возможностей обустроить комнату:

- Вы можете встроить мебель в ниши так, чтобы они не выпирали и не мешали.
- Установить соответственное освещение, которое будет достаточно ярким для большой комнаты.
- Придумать творческое интересное интерьерное решение.
- Скомпоновать в комнате сразу несколько интерьерных стилей.
- Разделить комнату на зоны, и тем самым не отделять их стенами.
- Придумать многие другие интересные решения размещения мебели, бытовых предметов, вещей и т.п.
Когда появляется много лишнего пространства, то его лучше заполнить одним из следующих дизайнерских стилей: «Кантри», «Арт-деко», «Эко-стиль», или же «Хай-тек».
Последний, хорош тем, что именно в нем нет никаких лишних вещей, бытовых приборов, посуды, расположенных «на видных местах». Все спрятано в специальные конструкции из мебели, ниши, тумбы. Так, у вас появляется еще больше свободного пространства.
Если вы только планируете сделать перепланировку, обязательно узнайте здесь что можно и чего нельзя делать при перепланировке.
Если ваша квартира расположена на 1м этаже, тогда можно пристроить балкон. По ссылке https://svoe.guru/zhilaya-sobstvennost/kvartira/pereplanirovka/pristroit-balkon.html можно ознакомиться, с чего начать и куда обращаться за разрешением.
Переделка по сериям
Данные варианты представляют собой определенные типы, которые существуют и относятся к разным массовым сериям. Одни строились еще при Советском Союзе, другие – современные, построенные недавно. Они отличаются следующими моментами:
- архитектурным обликом;
- возведением в разные годы;
- технологиями строительства – кирпичные, блочные, панельные и т.п;
- жилой площадью и размерами;
- многими другими критериями.
Планировка квартир в данном сегменте состоит из 4 или 8 рядовых угловых секций.
Это могут быть как однокомнатные, так и четырехкомнатные квартиры.
Высота их потолков 2,64 метра.
Обычно сконструированы лифты (не менее двух, один из которых предназначен для грузовых перевозок) и есть в наличие чердачное помещение.
Наружная стена состоит из трехслойных панелей, имеющих 350 миллиметров толщины, внутренние – 140 и 180 соответственно. Каждая из перегородок еще тоньше – 80. Каждый этаж оборудовали мусоропроводом. В случае перепланировки каждый может снести самые тонкие стены в доме.
Далее смотрите в видео особенности перепланировки 3х комнатной квартиры в доме серии П-3, а также варианты переоформления жилья.
Cерия «П 44»
Трехкомнатные квартиры здесь состоят из 4 и 2 угловых секций. Дома такого типа имеют обычно семнадцать этажей. Наружная стена составляет 300 миллиметров и три слоя панелей. Несущие стены между комнатами 80 мм.
Если вам нужна перепланировка 3 х комнатной квартиры серии п 44, тогда вы можете снести стены, которые находятся между кухней, туалетом и ванной. Потолки здесь стандартные – 2,64 метра. Вентиляционные каналы встроены только в кухонной и ванной комнатах.
Варианты перепланировки трехкомнатных квартир П 44:
Смотрите в видео варианты перепланировки трехкомнатной квартиры в популярном доме серии П-44:
В домах панельного типа, трехкомнатных квартирах данной серии есть всего 9 этажей. Наружная стена дома керамзитобетонная – 340 мм.
Все внутренние из материала железобетона и составляют 180 миллиметров. Есть самые тонкие перегородки, которые имеют толщину 80 и более крупные – 140 мм.
Если вы затеяли перепланировку, тогда сможете снести только менее толстые стены. Высота потолков – стандарт 2,64 метра.
Варианты перепланировки 3 х комнатной квартиры в панельном доме:
Смотрите также видео — перепланировка 3 комнатной квартиры в панельном доме 60 кв м. серии 121:
Серия «П 44 Т»
Облицовка дома имеет вид кирпича. Сам же дом построен на основе панелей. Потолки здесь сделаны более высокого типа и составляют около 2,75 метров.
Так как дом высокий и может иметь много этажей (11, 15 и т.п.), то функционируют два лифта, один из которых грузовой. Наружная стена сделана из железобетона (300 мм), а несущие (180) – из панелей железобетона.
При желании перепланировки, вы можете снести перегородки между балконом и кухней, ванной и санузлом.
Рассмотрим варианты перепланировки 3 х комнатной квартиры П44Т:
Эти старые дома сконструированы еще в 1970 годы. Они имеют большой метраж, ширина комнат составляет не меньше, чем 3,5 метра.
Большая ванная комната – все смежные с ней можно совместить за надобностью. Также, высота потолков составляет около 2,7 метров, есть два лифта, один из которых перевозит грузы.
Наружные стены сделаны из облегченных керамзитобетонных панелей.
Все внутренние можно снести, кроме нескольких несущих стен между основными тремя комнатами.
Варианты перепланировки трехкомнатной квартиры 137 серии:
Этот тип домов сконструирован так, что общая жилая площадь квартиры составляет 64 квадратных метра. Перепланировка трехкомнатной квартиры в панельном доме 90 серии очень сложна. Разрешено объединять только ванную комнату с туалетной.
Можно снести стенки кладовой, чтобы увеличить кухню. Также, между кухонной комнатой и главным залом можно снести пол стены, чтобы получилась современная кухня – студия.
Для домов панельного типа сообразно устанавливать арки, чтобы они придерживали всю конструкцию трехслойных панелей со стандартными потолками.
«Ташкентская» планировка
Данные дома имеют 16 этажей в целом. Строили их еще при Союзе. У них особая коридорная система, есть мусоропровод и два лифта, один из которых – грузовой.
Также, в трехкомнатных квартирах есть кухня, которая составляет около восьми квадратных метров, и все кухонные окна выходят в одну сторону. Имеется лоджия (в 1-комнатных они отсутствуют).
В этом, определенно недорогом классе жилья, можно совмещать все стандартные тонкие перегородки: лоджию или кладовую с кухонной комнатой, ванную с санузлом или комнату с коридором.
Особого внимания при перепланировке уделите вопросам о документации. Все документы должны быть собраны должным образом в соответствии с действующим законодательством страны.
Все проекты должны быть изготовлены специалистами, так как процесс перепланировки – очень ответственный. Самое главное – не забывайте, что все несущие стены в каждом доме любой серии должны быть целыми. Иначе вы будете иметь проблемы с законом и государственными органами.
Что касается дизайнерских решений, то каждая конструктивная деталь должна быть выполнена в соответствии с проектом. Вы имеете полное право подобрать дизайнерский стиль, который вам наиболее всего нравится.
Для этого вы должны закупить все современные строительные материалы, соответственную мебель, бытовую технику под ваше интерьерное решение, и установить определенное освещение. Эти все детали должны быть согласованы со специалистом заранее.
Не нашли ответа на свой вопрос? Узнайте, как решить именно Вашу проблему — позвоните прямо сейчас:
+7 (499) 938-51-36 (Москва)
+7 (812) 467-38-73 (Санкт-Петербург)
