Что именно входит в общую площадь дома?
Здравствуйте. Скажите пожалуйста, входит ли виранда без отопления и полов, со стеной и крышей в общую площадь дома? Ведь оно не является жилым помещением.
Ответы юристов ( 4 )

Добрый день, Ильнара!
ПРИКАЗу Росстата РФ
от 27 декабря 2017 г. N 878
ОБ УТВЕРЖДЕНИИ СТАТИСТИЧЕСКОГО ИНСТРУМЕНТАРИЯ
ДЛЯ ОРГАНИЗАЦИИ ФЕДЕРАЛЬНОГО СТАТИСТИЧЕСКОГО НАБЛЮДЕНИЯ
ЗА СОСТОЯНИЕМ ЭКОНОМИКИ И СОЦИАЛЬНОЙ СФЕРЫ
МУНИЦИПАЛЬНОГО ОБРАЗОВАНИЯ
Общая площадь введенных жилых помещений во введенных в эксплуатацию жилых и нежилых зданиях, жилых домах определяется как сумма площадей всех частей жилых помещений, включая площадь помещений вспомогательного использования, предназначенных для удовлетворения гражданами бытовых и иных нужд, связанных с их проживанием в жилом помещении, площадей лоджий, балконов, веранд, террас, подсчитываемых с соответствующими понижающими коэффициентами, а также жилых и вспомогательных помещений в индивидуальных жилых домах. К помещениям вспомогательного использования относятся кухни, передние, холлы, внутриквартирные коридоры, ванные или душевые, кладовые или хозяйственные встроенные шкафы. В домах-интернатах для престарелых и инвалидов, ветеранов, специальных домах для одиноких престарелых, детских домах к подсобным помещениям относятся столовые, буфеты, клубы, читальни, спортивные залы, приемные пункты бытового обслуживания и медицинского обслуживания.
В общую площадь введенных жилых домов не входит площадь вестибюлей, тамбуров, лестничных клеток, лифтовых холлов, общих коридоров, а также площадь в жилых домах, предназначенная для встроенно-пристроенных помещений.
ПРИКАЗу Росстата РФ
от 27 декабря 2017 г. N 878
ОБ УТВЕРЖДЕНИИ СТАТИСТИЧЕСКОГО ИНСТРУМЕНТАРИЯ
ДЛЯ ОРГАНИЗАЦИИ ФЕДЕРАЛЬНОГО СТАТИСТИЧЕСКОГО НАБЛЮДЕНИЯ
ЗА СОСТОЯНИЕМ ЭКОНОМИКИ И СОЦИАЛЬНОЙ СФЕРЫ
МУНИЦИПАЛЬНОГО ОБРАЗОВАНИЯ
Общая площадь введенных жилых помещений во введенных в эксплуатацию жилых и нежилых зданиях, жилых домах определяется как сумма площадей всех частей жилых помещений, включая площадь помещений вспомогательного использования, предназначенных для удовлетворения гражданами бытовых и иных нужд, связанных с их проживанием в жилом помещении, площадей лоджий, балконов, веранд,
к сожалению, веранда входит в общую площадь. Когда будете заказывать техплан на дом, кадастровые инженеры и сотрудники БТИ будут учитывать эту площадь, согласно вышеуказанному нормативно -правовому акту.

- 10,0 рейтинг
- 6694 отзыва эксперт
Приказ Министерства экономического развития РФ от 30 сентября 2011 г. № 531
II. Определение общей площади жилого помещения, жилого дома
6. Общая площадь жилого помещения, жилого дома состоит из суммы площади всех частей такого помещения, жилого дома, включая площадь помещений вспомогательного использования, предназначенных для удовлетворения гражданами бытовых и иных нужд, связанных с их проживанием в жилом помещении, за исключением балконов, лоджий, веранд и террас.
К площади помещений вспомогательного использования относятся площади кухонь, коридоров, ванн, санузлов, встроенных шкафов, кладовых, а также площадь, занятая внутриквартирной лестницей.
Измерение расстояний, применяемых для определения общей площади жилого помещения, жилого дома, производится по всему периметру стен на высоте 1,1 — 1,3 метра от пола.
При определении общей площади жилого помещения, жилого дома надлежит:
— площадь ниш высотой 2 метра и более включать в общую площадь помещений, в которых они расположены. Площади арочных проемов включать в общую площадь помещения, начиная с ширины 2 метра;
— площадь пола под маршем внутриквартирной лестницы, при высоте от пола до низа выступающих конструкций марша 1,6 метра и более, включать в общую площадь помещения, в котором расположена лестница;
— площадь, занятую выступающими конструктивными элементами и отопительными печами, а также находящуюся в пределах дверного проема, в общую площадь помещений не включать.
При определении общей площади помещений мансардного этажа учитывается площадь этого помещения с высотой от пола до наклонного потолка:
1,5 метра — при наклоне 30 градусов к горизонту;
1,1 метра — при 45 градусах;
0,5 метра — при 60 градусах и более.
При промежуточных значениях высота определяется по интерполяции.

ЖК РФ, Статья 15. Объекты жилищных прав ««5. Общая площадь жилого помещения состоит из суммы площади всех частей такого помещения, включая площадь помещений вспомогательного использования, предназначенных для удовлетворения гражданами бытовых и иных нужд, связанных с их проживанием в жилом помещении, за исключением балконов, лоджий, веранд и террас.
Удачи вам и всего хорошего
![]()
В соответствии с частью 5 статьи 15 Жилищного кодекса Российской Федерации (далее — Жилищный кодекс) общая площадь жилого помещения состоит из суммы площади всех частей такого помещения, включая площадь помещений вспомогательного использования, предназначенных для удовлетворения гражданами бытовых и иных нужд, связанных с их проживанием в жилом помещении, за исключением балконов, лоджий,веранд и террас.
Жилым домом признается индивидуально-определенное здание, которое состоит из комнат, а также помещений вспомогательного использования, предназначенных для удовлетворения гражданами бытовых и иных нужд, связанных с их проживанием в таком здании (часть 2 статьи 16 Жилищного кодекса).
Читать еще: Публичная кадастровая карта 2020 года ✔️
Согласно пункту 14 Указаний по заполнению формы федерального статистического наблюдения N С-1 «Сведения о вводе в эксплуатацию зданий и сооружений», утвержденных Приказом Росстата от 01.11.2008 N 274, к жилым зданиям (домам) относятся жилые дома постоянного типа, общежития, приюты, дома маневренного фонда, дома-интернаты для престарелых и инвалидов, ветеранов, специальные дома для одиноких престарелых, детские дома, интернаты при школах и школы-интернаты, другие дома (системы социального обслуживания населения, фонда для временного поселения вынужденных переселенцев и лиц, признанных беженцами, для социальной защиты граждан).
В соответствии с подразделом 3.2.2 раздела 3 Методологических положений по системе статистических показателей, разрабатываемых в статистике строительства и инвестиций в основной капитал, утвержденных Приказом Росстата от 11.03.2009 N 37, общая площадь жилых помещений в введенных в эксплуатацию жилых зданиях (домах) определяется как сумма площадей всех частей жилых помещений, включая площадь помещений вспомогательного использования, предназначенных для удовлетворения гражданами бытовых и иных нужд, связанных с их проживанием в жилом помещении, а также площадей лоджий, балконов, веранд, террас, подсчитываемых с соответствующими понижающими коэффициентами (п. 2 приложения 2 к СНиП 2.08.01-89 «Жилые здания», п. п. 3.34 и 3.37 «Инструкции о проведении учета жилищного фонда в Российской Федерации», утвержденной Приказом Минземстроя от 04.08.1998 N 37).
Таким образом, веранда не входит в общую площадь дома
+7(343)361-27-66,
+7(343)346-80-75
Строительство
финских домов
в Екатеринбурге
Как посчитать общую, жилую, строительную площадь дома
Выбирая проект частного дома для строительства очень важно знать его площадь. Довольно часто заказчик и строитель говорят на разных языках, понимая под площадью дома совершенно разные понятия.
Происходит это не по злому умыслу, а потому, что заказчику дома фактически нужна пустота в доме, свободное пространство, где он будет ставить мебель, отдыхать, ходить и есть, словом, жить. Поэтому жильцу дома интересна внутренняя, жилая площадь и высота потолков, кубатура помещений. Строителю же важны расход материалов на стены и перекрытия, фундамент и крышу. Поэтому в первую очередь строители интересуются внешними размерами дома, высотой стен, крыши и говорят о строительной площади дома, площади застройки, объеме строительства.

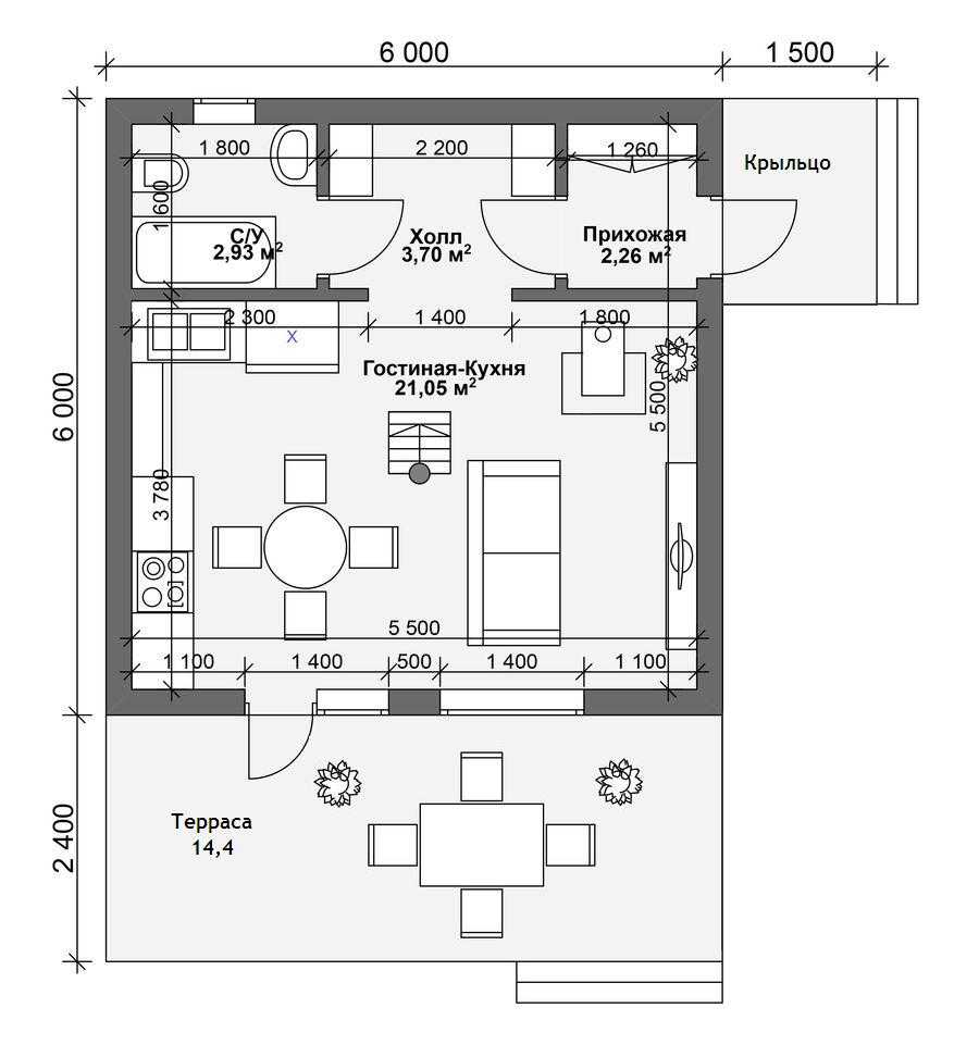
Например, в проекте «Алиса», площадь застройки с учетом крыльца и веранды 52,65 кв.метра, строительная площадь дома 36 кв.метров, общая площадь 34,5 кв.метров, с учетом антресоли, жилая 29.26 кв.метров, а площадь полов (с учетом антресоли) 30+15,5=45,5 кв.метров!

Поскольку максимальная высота до потолка над антресолью всего 160 см, площадь антресоли учитывается как жилая не вся. Угол кровли 30 градусов, следовательно учитывается площадь выше 1,5 метра, а это не более 4,5 метров. Спать — можно, сидеть можно, а юридически — площадь антресоли не вся суммируется с жилой площадью!
ОСНОВНЫЕ ТЕРМИНЫ В СТРОИТЕЛЬСТВЕ
При проектировке здания проектировщик и застройщик используют для расчета 4 основных понятия:
- Площадь помещений. Это расчет размеров помещения, определяемый по расстоянию между стенами без учета плинтусов. Если в частном доме установлена кирпичная печь или камин, ее размеры исключаются из площади помещений во время расчетов.
- Общая площадь здания – это суммарная площадь всех отапливаемых жилых и нежилых помещений, в которую входят комнаты, кухня, тамбур, коридоры, прихожая и встроенные шкафы. Раньше при расчете общей площади учитывались веранды, террасы, балконы и лоджии, но сейчас это правило перестало действовать. Они учитываются только в площади застройки. Площадь внутренней лестницы учитывается в общей площади один раз, по размерам пролета, вне зависимости от числа этажей. Наружные лестницы, вне отапливаемых помещений в общей площади не учитываются.
- Жилая площадь – это суммарная величина жилых комнат, в документах они учитываются как комнаты, предназначенные для постоянного проживания людей. Это кухня, гостиная, спальня, детская, рабочий кабинет, также в это понятие включаются гардеробные комнаты.
- Полезная площадь (в иностранных стандартах она обозначается как «используемая). Это суммарная площадь всех помещений, из этой величины исключается площадь лестниц и лестничных клеток, а также лифтовых шахт и пандусов.
- Площадь застройки по закону она не должна превышать 30% от общей площади участка. В эту величину включается общая площадь горизонтального разреза здания, проведенного на уровне цокольной части. При этом в данную величину включается площадь крыльца, террасы или веранды, но не включается размер балкона на втором этаже, если у него нет дополнительных несущих столбов.
Зная эти термины и разницу между ними, вы сможете внятно объяснить проектировщику и строителю какого размера дома вам нужен. Кроме того, общая и жилая площадь указываются в объявлениях при поиске покупателя на дом.
ЧЕМ ОТЛИЧАЮТСЯ ОБЩАЯ И ЖИЛАЯ ПЛОЩАДЬ?
В жилую площадь частного дома входит площадь комнат для проживания.
Понятие общей площади дома учитывается при расчете нормы, которая должна приходиться на каждого человека, проживающего в данном помещении. И учитывается при расчете необходимой мощности отопительной системы.
Читать еще: Нужно ли согласие супруга на покупку квартиры — разбираем случаи
Жилая площадь обязательно указывается в объявлениях при продаже, так как этот параметр позволяет оценить реальные размеры жилого пространства. Например, в некоторых проектах в большом доме может быть оборудована просторная прихожая, техпомещение или тамбур, но при этом сами комнаты окажутся маленькими и тесными.
Все эти данные вносятся в технический паспорт дома.
НЮАНСЫ ОЦЕНКИ ОБЩЕЙ И ЖИЛОЙ ПЛОЩАДИ
При расчете общей и жилой площади у покупателя и продавца или у заказчика и застройщика нередко возникают разногласия, так как не учитывается несколько важных нюансов:
- Если в здании есть ниши, высота которых составляет менее 2 м, они не могут учитываться в составе жилой площади помещения. Особенно это важно в так называемых мини-домах.
- Если площадь пространства под лестничным маршем составляет не более полутора метров, она также не будет учитываться при оценке размеров дома.
- Особо сложно рассчитывать размеры жилого помещения мансардного этажа или используемого чердака. В этом случае основным параметров для расчета становится наклон кровли. Если наклон кровли составляет 27 градусов, в общую жилую площадь входит только часть помещения с высотой 1,5 метра до кровли. Подробнее ниже.
Как рассчитать жилую площадь мансардного помещения?
При подсчете площади помещения с наклонным потолком учитывается площадь этого помещения с высотой до наклонного потолка, м:
1,5 — при его наклоне к горизонту 30°;
1,1 — то же 45°;
0,5 — “ 60° и более.
При промежуточных значениях указанного наклона потолка высота определяется по интерполяции. Площадь пола под лестницей учитывается с высотой до ее выступающих конструкций 1,6 м и более. Площадь помещения и пола под лестницей меньшей указанной высоты учитывается в площади помещения с коэффициентом 0,7.
Точный расчет общей и жилой площади необходим при проектировке будущего дома и при последующей приемке здания после завершения строительства. При продаже это один из ключевых параметров, напрямую влияющий на оценку итоговой стоимости здания.
Похожие статьи
Ветровая доска — защита и украшение дома
Шведские каркасные дома — от старинных до современных
Как правильно выбрать котёл для Вашего дома?
Что входит в жилую площадь частного дома
Как считается площадь дома
Соответствуя Жилищному Кодексу РФ, понятие общая площадь включает в себя сумму площадей всех комнат и частей данного помещения, в том числе и площадей комнат (помещений) дополнительного или вспомогательного назначения (использования), которые предназначаются для бытовых и иных потребностей граждан. Такими помещениями считаются: кухни, коридоры, ванные комнаты и т.п.
Но органы технической инвентаризации для определения площади помещений применяют Инструкцию о проведении учёта жилищного фонда РФ. И поэтому в документах БТИ по определению площади квартиры или индивидуального жилого дома содержится общая информация, где в учёт входят балкон, лоджия, терраса и т.д. Такие помещения относят к общей площади, но c понижающим коэффициентом: 0,5 – лоджии; 0,3 – террасы и балконы; 1,0 – также террасы и холодные кладовые.
Как узнать, что входит в жилую площадь частного дома, и как ее можно посчитать
Если управляющая компания неправильно рассчитывает стоимость отопления из-за неверно указанной в документах общей площади, необходимо переоформить технический паспорт, после чего соответствующие изменения вносятся в кадастровый паспорт и свидетельство о собственности. После этого управляющая компания должна будет провести перерасчет.
- Если в здании есть ниши, высота которых составляет менее 2 м, они не могут учитываться в составе жилой площади помещения.
- Если площадь пространства под лестничным маршем составляет не более полутора метров, она также не будет учитываться при оценке размеров дома.
Что входит в жилую площадь квартиры? Считать ли балкон
Чтобы самостоятельно вычислить размеры конкретной комнаты, достаточно измерить её ширину и длину по полу, а затем перемножить оба значения. Такой способ определения площади отдельного помещения подходит в случае, если комната является прямоугольной. Величина измеряется по внутренним стенам вдоль плинтуса.
Узнать размеры жилой и общей площадей конкретного жилья возможно двумя способами – самостоятельно или с помощью квалифицированных специалистов. Если определение данных величин требуется с целью реализации квартиры, рекомендуется воспользоваться услугами организаций, специализирующихся на вычислении площади.
Что входит в жилую площадь квартиры? Понятие общей и жилой площади
На что еще стоит обратить внимание? К примеру, что включает в себя общая площадь жилища. Этот важный показатель тоже для многих играет роль. По нему можно определить, какое пространство отведено в целом для ваших нужд, а не только для проживания. Сюда включены:
Все легко и просто. Мы уже выяснили, что составляющая данного пространства — жилая комната. Дальше все просто. Чтобы понять, какая площадь отводится для проживания, необходимо сначала подсчитать метраж каждой комнаты, а после полученные значения сложить воедино. И у вас получится нужный показатель. Как считается площадь комнаты? Здесь приходят на помощь самые обычные математические формулы для расчета площади квадрата и прямоугольника. Все измерения проводить необходимо по внутренней стороне плинтуса.
Читать еще: Публичная кадастровая карта — Россия 2020 года
Площади дома: общая, площадь застройки и другие
Скажите пожалуйста, после раздела частного дома осталось две комнаты без кухни и санузла, после пристройки кухни и санузла остался коридор — без четвертой стены с прямым доступом на улицу, в тот же момент являющимся выходом из комнат, кухни, санузла (т.е. между двумя стенами домов).
В одной из комнат нет окон совсем.
Может ли комната без окон являться жилой площадью?
Может ли коридор, который является можно сказать улицей являться жилой или общей площадью?
Наталья:13.10.2014 в 12:32
Если они вам сделали тех.паспорт и он нужен только для подключения газа то не беспокойтесь.
Если вы хотите зарегистрировать дом, то обратитесь лучше к опытным кадастровым инженерам. Т.к. только кадастровый инженер вправе подготовить тех.план для получения кадастрового паспорта и дальнейшей регистрации обьекта недвижимости. А тех.паспорт сейчас принципе не особо значимый документ.
Что такое жилая площадь квартиры (дома)
В инструкции № 37 о проведении учета жилья в Российской Федерации, которая была утверждена приказом Минземстроя России еще в 1998 году, сказано, что жилая площадь квартиры равна сумме площадей комнат, которые являются жилыми. Что же не входит в жилую площадь:
Также понятие жилая площадь употребляется врачами при исследовании зависимости различных заболеваний от объема жизненного пространства и числа человек, проживающих на одной площади. Здесь как раз учитывается именно жилая площадь дома, так как в остальных помещениях мы проводим намного меньше времени, чем в комнатах.
Общая площадь дома что входит
Приложение В. Термины и определения: общая площадь жилого строения, жилого дома. Сумма площадей его помещений, встроенных шкафов, а также лоджий, балконов, веранд, террас и холодных кладовых, подсчитываемых со следующими понижающими коэффициентами: для лоджий — 0,5, для балконов и террас — 0,3, для веранд и холодных кладовых — 1,0 площадь, занимаемая печью, в площадь помещений не включается. Площадь под маршем внутриквартирной лестницы при высоте от пола до низа выступающих конструкций 1,6 м и более включается в площадь помещений, где расположена лестница
Общая площадь определяется как сумма площадей помещений, куда включаются также встроенные шкафы, лоджии, веранды, тамбуры, кладовые и другие помещения. По определению это суммарная площадь жилых и подсобных помещений квартиры с учетом лоджий, балконов, веранд, террас, холодных кладовых и встроенных шкафов.
Расчет площади дома
Не могу понять вопрос, к сожалению. Объясните, для чего Вам нужна эта площадь дома, что Вы так подробно выясняете, как ее считать? С чем это связано (может с налогами, может дом будет под залогом, и тд)? Когда будет понятно, для чего всё это, тогда я пойму, к какой области относится Ваш вопрос, и где может быть ответ.
Будівельний паспорт визначає комплекс містобудівних та архітектурних вимог до розміщення і будівництва індивідуального (садибного) житлового будинку, садового, дачного будинку не вище двох поверхів (без урахування мансардного поверху) з площею до 300 квадратних метрів, господарських будівель і споруд, гаражів, елементів благоустрою та озеленення земельної ділянки.
Что с 2020 года входит в общую площадь частного жилого дома
Площадь мансардного этажа жилого здания определяется в пределах внутренних поверхностей наружных стен и стен мансарды, смежных с пазухами чердака с учетом пункта 13 настоящих Требований. Площадь эксплуатируемой кровли жилого здания определяется в пределах внутренних поверхностей ограждений по периметру эксплуатируемой кровли.
«»5. Общая площадь жилого помещения состоит из суммы площади всех частей такого помещения, включая площадь помещений вспомогательного использования, предназначенных для удовлетворения гражданами бытовых и иных нужд, связанных с их проживанием в жилом помещении, за исключением балконов, лоджий, веранд и террас.
Подсчет площадей дома
Площади дома вычисляются в соответствии с ДБН В.2.2-15-2005 «Жилые здания. Основные положения». В соответствии с вышеупомянутым документом выделяют следующие площади: площадь застройки, общая площадь, площадь жилого здания, жилая площадь. Все эти площади должны быть указаны в проекте дома. Измеряются они в пределах стен на уровне пола, без учета плинтуса.
Жилая площадь – просто суммируем площади жилых помещений. Вопрос в другом: «Какие помещения считаются жилыми?». Жилые помещения – это помещения расположенные в надземных этажах, отапливаемые и предназначенные для круглогодичного проживания в соответствии нормам.
