Перепланировка санузла
Перепланировка санузла в квартире.
Типовые квартиры традиционно отличаются тесными и неудобными помещениями санузла и ванной, узкими коридорами, маленькой и неудобной кухней. Перепланировка туалета часто имеет место в панельных домах.
Исправить эту ситуацию с помощью одного лишь косметического ремонта невозможно: это даст лишь визуальный эффект.
Исправить положение по-настоящему можно, только если провести перепланировку этих помещений, которая поможет увеличить их площадь.
Главное, это подобрать такой вариант перепланировки санузла, который бы с одной стороны соответствовал вашим представлениям о том, как должно выглядеть помещение, а с другой стороны — соответствовал действующим строительным и санитарным нормам.
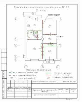
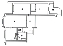
Перепланировка санузла в квартире, фото:



Перепланировка санузла в панельном доме: совмещение, перенос, расширение и устройство нового санузла.
- Провести перепланировку санузла в типовой квартире можно несколькими путями. Во-первых, его можно расширить за счет смежного помещения (кладовки, коридора, встроенного шкафа). Но такой вариант возможен не всегда. В условиях стандартной городской квартиры увеличить помещение «мокрой зоны» можно только за счет смежного нежилого помещения, то есть коридора, кладовки или подсобки. Расширять санузел в панельном многоквартирном доме на жилую комнату запрещается, за одним исключением о котором мы поговорим позже. Также не допускается проводить перепланировку туалета, при которой он будет находиться над жилой комнатой или кухней соседей снизу. То же относится и к ванной. Эти требования регламентируются СаНПиН 2.1.2.2645-10 и СНиП 31-01-2003. Исключение сделано только для квартир на первых этажах и для вторых уровней двухэтажных квартир.
- Во-вторых, можно провести перепланировку ванной и санузла в совмещенный санузел. Такой вариант — один из самых популярных. Это делается либо при помощи демонтажа перегородки между ними, либо посредством демонтажа сантехкабины, если конструкция дома предусматривает последнюю. Часто при объединении туалета и ванной предусматривается и их расширение на коридор или кладовку. Как и в первом случае, при этом придется учитывать запреты и исключения соответствующих СНиПов и СаНПинов.
- В-третьих, иногда есть возможность организовать второй санузел. Плюсы такого варианта сложно переоценить, однако далеко не всегда его можно реализовать. К примеру, СаНПин 2.12.2645-10 в части пункта 3.9 запрещает «устраивать вход в помещение, оборудованное унитазом, непосредственно из кухни и жилых комнат, за исключением входа из спальни в совмещенный санузел при условии наличия в квартире второго помещения, оборудованного унитазом, с входом в него из коридора или холла». В то же время, вход в ванную (не совмещенную с санузлом) можно делать из любой комнаты.
В интернете можно довольно часто увидеть проекты перепланировки, предполагающие перенос санузла или ванной комнаты на место, например, кухни. Реализовать такой проект можно, не только в случае, если вы живете в загородном доме. Выполнить перепланировку с переносом туалета на другое место в обычной городской квартире возможно, однако сопряжено с рядом норм и требований. Если ваша квартира находится на первом этаже, является двухуровневой или под ней располагается нежилое помещение, то вы вполне можете осуществить перепланировку туалета. Однако жилая комната при переносе в нее санузла теряет статус жилой.
Совмещение, перенос, расширение и устройство нового санузла, фото:




Перепланировка санузла: Как узаконить несогласованную перепланировку?
Проводить такие работы самовольно — угроза безопасности вам и вашим соседям. Неграмотное вмешательство в инженерные коммуникации может привести к аварии, испорченному ремонту у соседей снизу, причем устранять последствия вам придется за свой счет .
Самовольная перепланировка санузла в квартире редко проходит в соответствии со строительными нормами, ведь в домах этого типа практически все внутренние стены являются несущими . Не только полный, но даже частичный демонтаж несущей стены может привести к нарушению устойчивости здания.
В «лучшем» случае такие работы приведут к появлению трещин на стенах, в худшем, например, если в квартирах ваших соседей также была проведена самовольная перепланировка туалета, может возникнуть угроза обрушения стены. Если провести подобную перепланировку без разрешения и не узаконить ее, вас обяжут выплатить административный штраф, а затем вернуть квартиру в соответствии с действующим поэтажным планом БТИ.
Чтобы избежать любых неприятных последствий, связанных с проведением перепланировки санузла в панельном доме, либо любом другом многоквартирном доме, первым делом необходимо собрать документы, получить все необходимые разрешения в коммунальных службах, и только после официального письменного разрешения из Жилищной инспекции можно приступать к перепланировке санузла в вашей квартире .
В том же случае если перепланировка уже состоялась, пусть и без вашего участия, нужно отталкиваться от того, есть ли красные линии в техническом паспорте вашей квартиры. Если БТИ уже внесла свои пометки, то не останется ничего как узаконить «самострой», предварительно заплатив штраф, если же пометок нет и вы уверены в том, что все ремонтные работы были проведены в соответствии со строительными и санитарными нормами и правилами, то такую перепланировку можно попытаться оформить задним числом.
Читать еще: Лицензирование отдельных видов предпринимательской деятельности: от и до
С юридической точки зрения второй вариант даже проще, однако при самовольных перепланировках редко соблюдаются все необходимые требования. В отличие от перепланировки по закону, при нелегальной от собственника потребуется поэтажный план здания с экспликацией до перепланировки и техническое заключение о допустимости произведенных работ.
Незаконная перепланировка, фото:



Перепланировка санузла: Согласование
Какие потребуются документы для перепланировки санузла, и в какие инстанции следует обратиться? Постановление Правительства Москвы № 508 в редакции 840 регламентирует их перечень в зависимости от различных нюансов согласования и типа дома. Чтобы приступить к работам, вам потребуется предоставить в «одно окно» Мосжилинспекции заявление, согласие собственников или членов семьи нанимателя, техпаспорт БТИ, и правоустанавливающие документы на квартиру. Также вам понадобится или специально разработанный проект перепланировки, либо копия плана БТИ с отмеченными на нем изменениями — это зависит от сложности намеченных преобразований.
Подробнее о спиcке документов для перепланировки санузла вы можете прочитать нажав на ссылку.
К примеру, вы хотите сделать несложную перепланировку с устройством совмещенного санузла, или поменять расположение сантехприборов в пределах существующих помещений. Если при этом не затрагиваются несущие стены дома, то тогда разработка проекта перепланировки не потребуется, а согласовать все можно будет по упрощенной схеме или по типовому проекту из каталога ОАО МНИИТЭП, если в нем есть серия вашего дома.
Работы, которые затрагивают несущие конструкции дома, можно согласовать только по индивидуальному проекту, поскольку они требуют сложных расчетов и могут быть небезопасны для дома и его жителей. Полный перечень таких работ дан в п.п. 2 и 3 Постановления Правительства Москвы № 508 в редакции 840.
Вам также потребуется разработка проекта перепланировки, если вы захотите расширить санузел за счет коридора или кладовки. Даже если не затрагиваются несущие стены, расширение «мокрых зон», должно сопровождаться укладкой дополнительного гидроизоляционного покрытия с составлением актов о скрытых работах (СНиП 2.03.13-88). Это означает вмешательство в конструкции полов, то есть относится к работам, согласуемым по проекту перепланировки.
Очень важно: Еще одно требование к полам «мокрых точек» выдвигает документ под названием «Технические требования и правила проектирования, устройства, приема, эксплуатации и проектирования» (в развитие СНиП 2.03.13-88 и СНиП 3.04.01-87 ).
В части п. 4.11 он устанавливает, что уровень пола в них должен быть на 15-20 мм ниже, чем в жилых комнатах, либо отделяться от них порожком .
За разработкой проекта перепланировки санузла необходимо обратиться в лицензированную проектную организацию (с допуском СРО), которая подготовит вам документы не только с учетом ваших требований к будущей планировке помещения, но и требований безопасности эксплуатации, с учетом всех действующих строительных и санитарных норм. Наличие лицензии государственного образца — обязательное условие для того, чтобы ваша перепланировка туалета была согласована.
Приступать к работам по перепланировке можно только после того, как будет получено разрешение на проведение работ из Жилищной инспекции. — 
Опыт тех, кто уже выполнял в своей квартире перепланировку ванной комнаты и санузла с разработкой проекта, подсказывает, что процедуру согласования лучше доверить профессионалам-посредникам, чем решать все своими руками. О том как выбрать компанию по согласованию перепланировок мы написали свое виденье в данной статье .
Если говорить о ценах, то наша компания занимается разработкой и согласованием проектов перепланировок, различной степени сложности и отличается надежностью, невысокой стоимостью услуг и положительными отзывами клиентов.
Ниже вы можете ознакомиться с проектными решениями при перепланировках с переносом, совмещением, устройством нового санузла, а также расширением его за счет кухни, коридора, ванной, кладовой или подсобных помещений.
Читать еще: Аренда части земельного участка
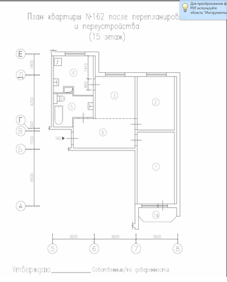
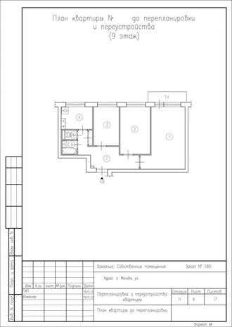
Проект перепланировки санузла в хрущевке, фото:


Проект перепланировки санузла в панельном доме, фото:



Перепланировка санузла в блочном доме:



Со многими ранее согласованными или спроектированными перепланировкам при которых затрагивается зона санузла вы можете ознакомиться внизу страницы.
Интерьер ванной и санузла соединенных вместе
Понравилась статья? Следите за новыми идеями из мира строительства, дизайна, полезных советов в нашем канале. Подписывайтесь на нас в Яндекс.Дзене. Подписаться.
Объединить ванную комнату и туалет решаются люди, в чьих квартирах эти помещения имеют малую площадь, что доставляет некоторые неудобства. Соединить ванную и санузел вполне разумно и рационально, если у вас небольшая семья или вы живете один.

Совмещенное пространство предлагает множество планировочных и дизайнерских решений
Почему лучше объединить ванную и туалет
При объединении этих помещений плюсов гораздо больше чем недостатков. Можно организовать и обустроить комнату так, что в ней может поместиться стиральная машина, которую некуда поставить или душевая кабина, о которой вы давно мечтаете.

Главное преимущество объединения ванной и туалета – это увеличение полезной площади, достигаемое за счет сноса стены и ликвидации дверного проема
Помните, что ремонтные работы при объединении ванной и туалета в панельном доме более трудоемкие, чем в кирпичном, и требуют серьезных согласований.
Главное, необходимо помнить, что любая перепланировка в квартире требует официального оформления и документальной регистрации в соответствующих органах.
Не стоит думать о соединении ванны и туалета в случае, когда стена между ними несущая – это грозит вам крупным штрафом и восстановлением стены. И тогда ремонтные работы, которые вы запланировали, пройдут зря.

Будет ли идея совмещения санузла рациональной и практичной – решать вам
Плюсы и минусы совмещенного санузла
Перед началом совмещения санузла рассмотрите все недостатки и положительные стороны этого проекта и посоветуйтесь со своими домочадцами, ведь ломать гораздо легче, чем восстанавливать.

В просторном помещении найдется место для удобной постирочной с нужной техникой и корзинами для белья
Плюсы объединения ванной комнаты и санузла позволяющие:
- поставить дополнительную сантехнику: биде, душевую кабину или стиральную машину;
- заменить ванну на более большую и современную;
- оборудовать комнату большей площади дополнительной мебелью;
- увеличить пространство, которое позволит выбрать более красивый стиль оформления;
- минимизировать расходы на отделочные материалы.

2,5 квадратных метра – пожалуй, это минимальная площадь, на которой можно планировать обустройство совмещенного санузла
Минусы объединения санузла:
- оформление необходимых документов на перепланировку займет немало времени и средств;
- если семья большая и с детьми и нет дополнительных туалетов в квартире, то такая перепланировка создаст большие неудобства;
- если у вас общая стена ванной комнаты и кухни, соединение неразумно – запахи санузла неизбежно попадут в помещение кухни.

Совмещенный санузел – это не лучший вариант для большой семьи
Планировка совмещенного санузла
Перед началом ремонтных работ необходимо основательно все продумать и замерить, какая площадь у вас получится в итоге и что необходимо разместить на этой площади.

Необходимо продумать различные варианты планировки и выбрать наиболее подходящий
Нарисуйте схему размещения сантехники и мебели с учетом их размеров, и основными правилами размещения для комфортного пользования:
- расстояние между биде и унитазом не менее 25 см;
- безопасный и свободный проход к ванной должен составлять около одного метра;
- у раковины для умывания должно быть не менее 70 см свободного пространства.

На чертеже необходимо четко разметить расположение сантехники и предметов мебели
При соединении ванны и туалета необходимо установить в помещении дополнительно принудительную вентиляцию, стандартная вытяжка может не справиться с повышенной влажностью.

Для санузла небольшого размера разумным решением будет угловая ванна, занимающая значительно меньше площади
Оптимальная расстановка сантехники
При совмещении ванной и туалета в панельном доме получится небольшое помещение от 3 до 5 кв.м, и при установке необходимой сантехники надо рационально использовать комнату, чтобы в ней было комфортно:
- совместить ванную и душевую кабину не получится, необходимо выбрать что-то одно или принимать процедуру душа, стоя в ванной;
- рассмотрите варианты установки угловой сантехники, она прекрасно впишется в небольшую комнату и позволит максимально оптимизировать пространство;
- если вы не любитель лежать в ванной, то лучше будет заменить ее душевой кабиной;
- модель подвесной раковины позволит разместить под ней небольшой шкафчик или стиральную машину.

Удачное планировочное решение для ванной квадратной формы
В просторном помещении ванной комнаты возможностей гораздо больше. Вы сможете совместить душевую кабину и просторную ванну, дополнительно к унитазу поставить биде и установить двойную раковину для умывания в зависимости от предпочтений и пожеланий вашей семьи.
Дизайн современного совмещенного санузла
В небольшом помещении не применяйте много ярких контрастов и темных цветов – это будет давить и о релаксации в ванной можно забыть.

Элегантный интерьер ванной в скандинавском стиле с темно-синими акцентами
Отделку в ванной комнате лучше выполнить в светлых пастельных тонах с небольшими яркими акцентами.
Оптимальные стили для совмещенного санузла:
- Прованс — светлые тона с цветочными орнаментами в обрамлении золотой отделки сделает вашу комнату шикарной.

Уютная ванная комната в стиле французского прованса

Классический интерьер ванной комнаты с унитазом за перегородкой

Компактный санузел с отделкой стен в духе минимализма

Восточная сказка, реализованная в марокканском стиле с национальными орнаментами на кафельной плитке
В небольших помещениях лучше применять глянцевые поверхности и гладкие фактуры отделочных материалов. В сочетании с большими зеркалами вы визуально расширите комнату. Если в вашем интерьере подразумевается стеклянная перегородка, то лучше выбрать прозрачную – она добавит света и легкости в интерьер.

Отлично смотрится ванная в современном стиле с его четкими линиями и правильными пропорциями
Выбор материалов и отделки
При выборе материалов для отделки помещения лучше придерживаться классических материалов для ванны, которые проверены временем.

Простой ровные потолок с точечными светильниками в санузле современного стиля
Потолок – декоративная штукатурка или виниловые влагостойкие обои. Стены в зоне ванной – кафельная плитка, а в других зонах штукатурка и обои.

С помощью плитки на стене комнату можно разделить на функциональные зоны
Пол – кафельная плитка и искусственный камень. Можно постелить влагостойкий линолеум, он не скользит – это особенно важно, если в доме маленькие дети и пожилые люди. При отделке кафелем выбирайте крупную плитку с глянцевой поверхностью.

Цвет и текстура напольного покрытия должны вписываться в общую атмосферу ванной комнаты
Компактная мебель
Производители предлагают массу вариантов мебели, которая подойдет к любому стилю и цветовому решению оформления санузла. При выборе мебели основывайтесь на ее эргономичности. Лучше выбирать многоуровневые узкие шкафчики со стеклянными и зеркальными фасадами. Открытые полочки над раковиной лучше приобрести в стеклянном исполнении.

Для маленьких санузлов производители мебели предлагаю готовые решения – компактные и удобные

Мебель с закругленными контурами помогает создавать иллюзию свободного пространства
Рассмотрите варианты угловой мебели – она оптимально эргономичная и займет те углы комнаты, которые вы обычно не используете.
Обращайте особое внимание на влагостойкость материалов, из которых изготовлена мебель – конечно лучше выбрать пластик и стекло.

Деревянная столешница вдоль всей стены визуально вытянет маленькую комнату, а поможет её в этом широкое зеркало
Освещение санузла
Освещение санузла должно быть ярким. На потолок лучше выбрать небольшой плафон и дополнить его небольшими светильниками у зеркала над раковиной.

В совмещенном санузле любой площади должно реализовываться несколько световых сценариев в разных функциональных зонах
Можно использовать небольшие точечные светильники для подсветки зоны ванной или душевой кабины. Для создания уютной и романтичной обстановки воспользуйтесь светодиодными лентами, которые можно пустить по периметру мебели, ванной или душевой кабины.

Места установки светильников выбирают в зависимости от метража ванной, высоты потолка и наличия выступов или перегородок
Рассмотрите модели мебели со встроенными точечными светильниками – вариантов очень много и вы с легкостью выберете свой.
Главное, чтобы осветительные приборы были предназначены для помещений с повышенной влажностью и соответствовали нормам безопасности.

Холодный белый свет удачно соединился с синей глянцевой плиткой, от чего пространство стало казаться визуально больше
Если технические характеристики помещения позволяют совместить ванну и туалет, и вы хотите создать в комнате уютную и комфортную обстановку, широкий выбор дизайнерских идей поможет вам с выбором.
